Experiência da gota de óleo
| Física |
|---|
![]() |
O experimento de Millikan ou experiência da gota de óleo foi um importante experimento científico que permitiu determinar a carga elétrica do elétron. A experiência foi realizada pela primeira vez pelo físico estadunidense que dá nome ao experimento, Robert Andrews Millikan, juntamente do também físico norteamericano Harvey Fletcher em 1909. Millikan posteriormente aperfeiçoou os procedimentos utilizados em 1913, e veio a ser laureado com o Prêmio Nobel de Física em 1923 por suas contribuições.
O experimento consistiu essencialmente em deixar cair gotas de óleo, utilizando um pulverizador, em uma câmara com campo elétrico. Algumas das gotas foram carregadas eletricamente por raios X incidentes e, ao aplicar um campo elétrico adequado, foi possível equilibrar a força peso e impedir sua queda. Medindo a intensidade do campo elétrico necessário para neutralizar a força da gravidade e conhecendo a massa das gotas (que pode ser inferida medindo a respectiva velocidade de queda livre no ar), Millikan observou que os valores das cargas elétricas das gotas sempre eram múltiplos inteiros de uma quantidade fixa, a carga do elétron. O valor obtido foi e = 1,592 4(17)×10−19 C, apenas 0,62% menor que o valor aceito atualmente de e = 1,602 176 565 (35)×10−19 C.
Uma versão desse experimento foi posteriormente usada para procurar quarks livres (os quais, se existirem, devem ter carga de (1/3) e- (um terço da carga elementar), mas não houve sucesso. Teorias atuais sobre quarks predizem que eles são fortemente ligados entre si e por isso não devem ser encontrados livres na natureza. Até o momento não há nenhuma evidência experimental de detecção partículas carregadas com valores fracionários de e-.[1]
Antecedentes
![]() |
||
Robert A. Millikan (1923) |
Harvey Fletcher (1914) |
Em 1896, o físico britânico Joseph John Thomson realizou uma série de experimentos que indicaram que os raios catódicos eram de fato partículas individuais e não ondas, átomos ou moléculas, como se acreditava anteriormente. Thomson fez boas estimativas tanto da carga do elétron quanto de sua massa, e descobriu que as partículas dos raios catódicos – as quais ele denominou de corpúsculos – teriam cerca de um milésimo da massa do íon mais leve conhecido, o íon hidrogênio. Ele também mostrou que a razão carga/massa independia do material do qual o cátodo era composto.[2]
Uma vez determinada a relação carga/massa, o próximo passo natural tornou-se determinar, de maneira separada, a massa e a carga do elétron. A primeira determinação da carga do elétron deve-se ao físico inglês John Sealy Townsend, aluno de Thomson, que publicou seu resultado em 1897.[3] Seu experimento consistia em medir duas grandezas: a carga total de uma nuvem de vapor de água, formada pela expansão de um gás ionizado; e o número de gotas na nuvem. A hipótese utilizada era a de que cada gota havia se condensado em único íon. Assim descobriu-se que dividindo a carga total pelo número de gotas (igual ao número de íons) resultaria no valor da carga de uma delas. O valor obtido por Townsend difere por um fator de 2 do valor aceito atualmente.[4]
Esse método foi modificado pelo próprio Thomson e pelo físico Harold Albert Wilson.[5] Wilson adicionou placas acima e abaixo da nuvem de modo que pudesse carregá-las eletricamente e produzir um campo elétrico uniforme vertical no espaço ocupado pela nuvem. Ele mediu a velocidade de queda da nuvem com e sem o campo elétrico e foi capaz de calcular o valor da carga a partir da equação de força, supondo válida a lei de Stokes.[4]
O físico estadunidense Robert Andrews Millikan interessou-se pelo problema da determinação da carga do elétron durante uma estada de um ano na Europa em 1895. Em outubro, ele assistiu a uma série de palestras em Berlim sobre física teórica ministradas por Max Planck em relação aos raios catódicos. Ao retornar aos Estados Unidos, passou a trabalhar como assistente de Albert Abraham Michelson, na Universidade de Chicago. No ano seguinte, Thomson determinou a natureza corpuscular dos raios catódicos. Em 1906, Millikan decidiu melhorar o método de Wilson usando baterias mais potentes, de 1600-3000 V, para produzir um campo elétrico mais intenso entre as placas separadas por 5 mm. Trabalhando com seu aluno de doutorado, Louis Begeman, os dois obtiveram valores mais precisos (Begeman obteve o valor 1,557·10-19 C em sua tese de doutorado).[6][7]
Experimento
![]() |
![]() | |
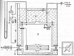
Esquerda: Diagrama do aparelho. A representa o atomizador, B a bateria elétrica, C os interruptores, D é a câmara de atomização, G é o recipiente com o óleo do motor, M e N são as placas do condensador entre as quais o campo elétrico é criado, X é a fonte de raios X, g são duas janelas de vidro, m é um manômetro, a é o microscópio e w e d são água e uma solução de cloreto de cobre (II) para absorver os raios X na saída. Direita: Foto do dispositivo. | ||
Em 1909, Harvey Fletcher iniciou seu doutorado com Millikan, cuja proposta de tese era a execução do experimento para determinar a carga do elétron. Observando que as gotas d'água evaporavam em menos de dois segundos, Fletcher propôs a utilização de uma outra substância, como mercúrio, óleo, entre outros. Millikan discordou, mas aceitou porque era a tese de doutorado de Fletcher. A partir dessa decisão, Fletcher projetou uma nova câmara para realizar as medições com gotas de óleo leve,[8] do tipo utilizado na lubrificação de relógios.[9]
Terminada a experiência, Fletcher redigiu o artigo que ele e Millikan teriam de assinar. Mas Millikan quis assiná-lo como único autor, embora citando Fletcher como colaborador. As regras da Universidade de Chicago impediam que artigos assinados por mais de um autor fizessem parte da tese de doutorado de um deles. Desse modo, Fletcher teve de mudar suas teses e apresentar um trabalho sobre movimento browniano, enquanto Millikan ficou com a autoria do experimento da gota de óleo.[10][8][11]
Equipamento utilizado
O aparelho era composto por três câmaras. A mais externa continha as outras duas e era preenchida por 40 L de óleo de motor para manter a temperatura constante entre as outras duas com flutuações limitadas a 0,02 °C. A mais interna consistia em duas placas circulares de latão de 22 cm de diâmetro colocadas horizontalmente uma sobre a outra e separadas por 1,6 cm. A superior tinha um pequeno orifício no centro e era carregada positivamente (+); a inferior não tinha orifício e era carregada negativamente (–). Entre estas placas era possível criar um campo elétrico uniforme, direcionado para baixo ou para cima, de intensidade entre 3 e 8 kV/cm (300 000 - 800 000 N/C). As placas foram separadas por três pequenos pedaços de ebonite, e todo o espaço foi fechado com uma fita de ebonite, isolando a câmara entre as placas do ambiente externo. Nessa faixa de ebonite havia três janelas de vidro quadradas, com 1,5 cm de lado cada, localizadas a 0°, 165° e 180°. Um feixe de luz estreito, produzido por uma lâmpada de arco, entrava pela primeira janela e saía pela última. A outra janela a 165º foi utilizada para observar, com o auxílio de um pequeno microscópio localizado a 61 cm, o interior da câmara.[12]
Um pulverizador, como aqueles usados em frascos de perfume,[9] produzia pequenas gotas de óleo no topo de outra câmara que continha a câmara descrita. As gotas caíram devido ao efeito do gravidade, e algumas delas passaram pelo pequeno orifício na placa superior. Ao observar a entrada de uma gota, o orifício era fechado para evitar correntes de ar. A gota então continuava, agora dentro da câmara, o seu caminho de queda até o solo. Uma fonte de radiação, raios X ou rádio (emissor de raios β e γ), entrando pela mesma janela pela qual a luz entrou, permitia que as moléculas do ar (nitrogênio ou oxigênio) fossem ionizadas e os íons, cátions ou elétrons, eram absorvidos pela gota de óleo.[12]
Técnica empregada

A queda das gotas de óleo no ar é descrita pela lei de Stokes, a qual afirma que a velocidade de queda é dependente da viscosidade do meio , neste caso o ar.[13][14] Essa velocidade pode ser determinada dividindo a distância percorrida pelo tempo de queda .
Quando o ar é ionizado, as gotículas absorvem elétrons. Na ausência de um campo elétrico, elas continuam a cair na mesma velocidade, pois as massas dos elétrons são muito pequenas. Contudo, produzindo um campo elétrico entre as placas é possível parar a queda de uma gota, ao igualar a força da gravidade e a força eletrostática. Por outro lado, se a intensidade do campo elétrico for maior que a necessária para o equilíbrio, pode-se fazer com que elas subam; tal subida, devido a outra característica da lei de Stokes, é um movimento em velocidade constante. Também é possível fazer com que a mesma gota suba e desça até atingir uma das placas e, assim, realizar uma série de medições com a mesma gota.[12]
Um dos destaques da pesquisa de Millikan é que as gotículas foram carregadas com um número indeterminado de elétrons, que ele não era capaz de calcular com a medição de apenas uma gota. Após diversas medições, ele obtivera diferentes valores de carga elétrica , interpretando corretamente que a carga elementar era a carga do elétron, e que deveria ser o máximo divisor comum de todas as cargas calculadas, ou seja, toda carga poderia ser escrita como para algum número inteiro .[12]
Dinâmica das gotas
Millikan partiu da lei de Stokes para relacionar a carga das gotículas de óleo à sua velocidade de queda .[12] George Gabriel Stokes determinou a força de atrito de corpos esféricos caindo em um meio viscoso com a velocidade do movimento . Tal força se opõe ao movimento e cresce à medida que aumentam a velocidade, as dimensões do corpo e a viscosidade do meio. A lei de força correspondente é escrita como:[15]
Nessa expressão, é o raio da esfera em queda e é a viscosidade.
Millikan fez uma correção nesta equação porque suas gotas eram muito pequenas, de modo que o atrito com o ar fosse menor que o prescrito por essa lei, já que durante uma fração de tempo as gotas, devido às suas pequenas dimensões, caem no vácuo. A equação de Stokes é correta para esferas maiores que 0,1 cm. A correção feita por Millikan é parametrizada e escrita por:[12]
Nesta equação, e é o caminho médio percorrido pelas gotas.[16]
![]() |
![]() | |
Durante a queda, um corpo fica sujeito a duas forças, gravitacional e de atrito de Stokes. Quando elas se igualam, sua aceleração torna-se zero e sua velocidade constante. |
Diagrama com as forças envolvidas quando a gota de óleo sobe devido ao efeito do campo elétrico. |
Quando não há campo elétrico, a gota cai devido ao efeito do campo gravitacional da Terra, que a acelera em direção ao solo, e é desacelerada pelo efeito da força de atrito de Stokes. Como a força de Stokes é proporcional à velocidade (), seu módulo aumenta até ficar igual ao módulo da força gravitacional , o que faz com que a esfera acelere até atingir uma velocidade terminal constante de queda :
Na presença de um campo elétrico que faça a gota subir à velocidade constante , torna-se necessário que a força de Coulomb que a faz subir, , seja igual à soma das forças que se opõem a essa subida, ou seja, à soma do peso e da força de atrito de Stokes, neste caso :
Assim, a velocidade de subida nesta situação é:
Isolando a constante da primeira equação e substituindo na última resulta:
Em seguida, isolando a carga elétrica da gota e escrevendo-a como função dos tempos de queda, , e de subida, , fica-se com:[17]

No caso de queda sem campo elétrico e desconsiderando a correção de Millikan para a lei de Stokes, pode-se deduzir a massa e o raio da gota a partir da velocidade de queda , que por sua vez é obtida fazendo a razão entre a distância percorrida e o tempo necessário para percorrê-la. Para isso, comparam-se duas expressões para a massa; a primeira é dada pela igualdade quando a partícula alcança a velocidade terminal :
A segunda decorre de que a massa da gota também pode ser relacionada à densidade do óleo e ao seu volume . Considerando a gota como uma esfera, podemos definir o raio , de modo que:
Pode-se então calcular o raio igualando as duas expressões da massa e exprimindo-o como função de parâmetros conhecidos:
Em seguida, para calcular a massa, substitui-se tal expressão para o raio naquela que relaciona massa, densidade e volume, resultando em:
Substituindo na expressão para a carga , obtém-se:
Por fim, simplificando a expressão, a carga fica expressa a partir dos valores medidos pelo experimento:[10]
Os valores utilizados no experimento de Millikan eram: viscosidade do ar ; densidade do óleo ; distância percorrida em queda livre ; tempo de queda . Aplicando as fórmulas anteriores, obtém-se os valores para a massa e para o raio das gotas: e .[16]
Valor da carga elementar e
Millikan também introduziu a correção decorrente de a gota de óleo estar imersa em um fluido, o ar, o que faz sofrer um empuxo para cima devido ao princípio de Arquimedes. Tal correção se manifesta em um termo adicional na segunda lei de Newton, que pode então ser interpretado na fórmula final como uma correção devido ao peso aparente:
Obtém-se então a fórmula utilizada por Millikan, substituindo a densidade do óleo por :
O valor obtido nos experimentos iniciais realizados por Millikan e Fletcher em 1911 foi de e = 4,891×10–10 Fr = 1,631×10–19 C,[12] que corresponde a uma diferença de 4,8% do valor atualmente aceito. Com as melhorias técnicas introduzidas por Millikan posteriormente, obteve-se, em 1913, um valor de e = 4,774 ± 0,009×10–10 Fr = 1,592 ± 0,003×10–19 C,[18] apenas 0,62% menor que o valor atual de e = 1,602 176 565 (35)×10−19 C.[19]
Repercussão
"Batalha pelo elétron"

Na primavera de 1910, iniciou-se a chamada "Batalha pelo Elétron" entre Millikan e um físico da Universidade de Viena, Felix Ehrenhaft. No mesmo ano, Ehrenhaft havia publicado[20] algumas medições da carga elementar feitas com um experimento semelhante ao de Millikan, mas que utilizava partículas metálicas, afirmando também a existência de uma distribuição de cargas menores que a do elétron. Nos anos seguintes, ele e seus alunos continuaram a publicar artigos indicando a existência de tais cargas, denominando-as subelétrons.
Tais alegações despertaram o interesse de alguns dos mais notórios físicos da época, como (Max Planck, Jean Perrin, Albert Einstein, Arnold Sommerfeld, Max Born e Erwin Schrödinger).[21] Para ratificar as conclusões de seu experimento, Millikan aprimorou sua técnica e fez novas medições mais precisas que confirmaram que a carga do elétron era a carga elementar, levando à publicação de um novo artigo em 1913, no qual ele também calculou a constante de Avogadro.[18] Além disso, em 1916, ele publicou um extenso artigo detalhando uma série de erros cometidos no procedimento experimental usado por Ehrenhaft.[22] Posteriormente, a comunidade científica formou consenso a favor de Millikan (Warburg, Rubens, Wien, Perrin e Einstein já o tinham feito na Conferência de Solvay de 1911),[23] fazendo com que ele fosse regularmente nomeado para o Nobel de Física desde 1916, até ser finalmente agraciado com o prêmio em 1923[7] por seu trabalho na determinação da carga elétrica elementar e no efeito fotoelétrico.[24]
Alegações de fraude
.png)
Analisando os cadernos de laboratório de Millikan em 1978, o físico Gerald Holton apontou que, apesar de indicar em seu artigo de 1913 que todas as gotas para as quais houve medição durante as 9 semanas de duração do experimento (58 medidas entre 13 de fevereiro e 16 de abril de 1912) teriam sido utilizadas em sua análise, suas anotações continham cerca de 100 gotas.[25] Holton sugeriu que esses dados foram omitidos sem razão aparente, insinuando que Millikan os teria manipulado.[11][23] Tal asserção foi contestada por Allan Franklin, um físico experimental de altas energias e filósofo da ciência na Universidade do Colorado.[26] Franklin argumentou que os dados excluídos não afetavam substancialmente o valor final de e, mas que sim reduziam o erro estatístico desse valor; o erro relativo da medida de e encontrado e publicado por Millikan foi de 0,5%, enquanto que teria sido de 2% caso tivesse incluído os dados descartados. Mesmo que este último valor de incerteza fosse menor do que em qualquer medida da carga elementar feita até então, poderia ter levado a mais questionamentos sobre a validade das conclusões do experimento na comunidade de física.[26]
Enquanto Franklin restringiu seu apoio à medição de Millikan concedendo que os dados poderiam ter sido "cosmeticamente" alterados, David Goodstein investigou os cadernos originais de Millikan, concluindo que ele afirma categoricamente neles, assim como nos relatórios finais, que incluiu somente gotas para as quais houve uma "série completa de observações" e que não foi excluída qualquer gota que não satisfizesse as condições de descarte. Das gotas excluídas, para 25 delas abortou-se o experimento antes de conclui-lo, não completando a coleta de dados; para as outras 17, considerou-se que houve fatores específicos que poderiam acarretar erros na medição: gotas muito grandes, bloqueio do manômetro por uma bolha de ar, interferência nas correntes de convecção, erros de cronômetro ou mau funcionamento do pulverizador.[25]
Exemplo de viés de confirmação
Em um discurso de formatura no Instituto de Tecnologia da Califórnia (Caltech) em 1974 (posteriormente impresso em Surely You're Joking, Mr. Feynman! em 1985, bem como em The Pleasure of Finding Things Out em 1999), o físico Richard Feynman destacou:[27][28]
Nós aprendemos muito com a experiência sobre como lidar com as maneiras pelas quais nós mesmos nos enganamos. Um exemplo: Millikan mediu a carga em um elétron por um experimento com gotas cadentes de óleo, e conseguiu a resposta que nós hoje sabemos não estar bem correta. Está um pouco errada porque ele usou o valor incorreto para a viscosidade do ar. É interessante analisar a história das medições da carga de um elétron depois de Millikan. Se você coloca-las em um gráfico como função do tempo, você descobre que uma é um pouco maior que a de Millikan, e que a próxima é um pouco maior que essa, e que a próxima é um pouco maior que essa, até que finalmente elas param em um número que é maior [ainda].
Por que não descobriram que o novo número era maior desde já? É uma coisa da qual os cientistas têm vergonha — esta história — porque é visível que as pessoas fizeram coisas como esta: quando conseguiam um número que era demasiado maior que o de Millikan, pensavam que algo devia estar errado — e então procuravam e encontravam uma razão pela qual algo poderia estar errado. Quando chegavam a um número próximo ao valor de Millikan, não procuravam tanto. E então eliminavam os números que estavam longe demais, e faziam outras coisas assim...[nota 1]
Desde maio de 2019, o valor da carga elementar é definido como sendo exatamente 1,602 176 634 × 10−19 C. Antes disso, o valor mais recente (2014) aceito pela comunidade[29] era 1,6021766208(98) × 10−19 C, onde (98) indica a incerteza das últimas duas casas decimais. Em sua palestra do prêmio Nobel, Millikan apresentou sua medida como sendo 4,774(5) × 10−10 statC,[30] que equivale a 1,5924(17) × 10−19 C. A diferença é menor que 1%, mas é seis vezes maior que o desvio padrão de Millikan, tornando a discordância significativa.
Utilizando um experimento de raio X, Erik Bäcklin encontrou um valor maior em 1928 para a carga elementar, (4,793 ± 0,015)×10−10 statC ou (1,5987 ± 0.005)× 10−19 C, que estava dentro da incerteza do valor exato. Raymond Thayer Birge, fazendo uma revisão das constantes físicas em 1929, afirmou: "A investigação de Bäcklin constitui um trabalho pioneiro, e é muito provável, como tal, que contenha várias fontes insuspeitas de erro sistemático. Se [... for ...] ponderada em acordo com o erro provável aparente [...], a média ponderada ainda será suspeitosamente alta. [...] o autor finalmente decidiu rejeitar o valor de Bäcklin, e usar a média ponderada dos dois valores restantes."[nota 2] Birge fez a média do valor de Millikan e de um experimento de raio X diferente e menos preciso que concordava com o resultado de Millikan.[31] Experimentos sucessivos de raios X continuaram a resultar em valores maiores, e propostas para as discrepâncias eram desconsideradas experimentalmente. Sten von Friesen mediu o valor com um novo método de difração de elétrons, enquanto que o experimento da gota de óleo fora refeito. Ambos resultaram em valores maiores. Em 1937, havia se tornado evidente que o valor de Millikan não poderia ser mantido como o padrão, e o valor consagrado tornou-se (4,800 ± 0,005)×10−10 statC ou (1,6011 ± 0.0017)×10−19 C.[32]
Notas
- ↑ Tradução livre de: We have learned a lot from experience about how to handle some of the ways we fool ourselves. One example: Millikan measured the charge on an electron by an experiment with falling oil drops, and got an answer which we now know not to be quite right. It's a little bit off because he had the incorrect value for the viscosity of air. It's interesting to look at the history of measurements of the charge of an electron, after Millikan. If you plot them as a function of time, you find that one is a little bit bigger than Millikan's, and the next one's a little bit bigger than that, and the next one's a little bit bigger than that, until finally they settle down to a number which is higher.
Why didn't they discover the new number was higher right away? It's a thing that scientists are ashamed of—this history—because it's apparent that people did things like this: When they got a number that was too high above Millikan's, they thought something must be wrong—and they would look for and find a reason why something might be wrong. When they got a number close to Millikan's value they didn't look so hard. And so they eliminated the numbers that were too far off, and did other things like that... - ↑ Tradução livre de: The investigation by Bäcklin constitutes a pioneer piece of work, and it is quite likely, as such, to contain various unsuspected sources of systematic error. If [... it is ...] weighted according to the apparent probable error [...], the weighted average will still be suspiciously high. [...] the writer has finally decided to reject the Bäcklin value, and to use the weighted mean of the remaining two values.
Referências
- ↑ «Search For Isolated Fractionally Charged Particles» (em inglês). Consultado em 3 de junho de 2012
- ↑ Thomson, J.J. (1897). «Cathode Rays». Philosophical Magazine. pp. 293–316
- ↑ Townsend, J.S (1897). «On Electricity in Gases and the Formation of Clouds in Charged Gases». Proc. Cambridge Phil. Soc. pp. 244–258
- 1 2 Hughes, V.W (1967). Atomic and Electron Physics: ATOMIC SOURCES AND DETECTORS. [S.l.]: Academic Press. ISBN 9780080859774
- ↑ Wilson, H.A (1903). «Charge on the Ions Produced in Air by Röntgen Rays» (PDF). Phil. Mag. pp. 429–441. Consultado em 21 de dezembro de 2015. Cópia arquivada (PDF) em 22 de dezembro de 2015
- ↑ Millikan, R.A.; Begeman, L (1908). «On the Charge Carried by the Negative Ion of an Ionized Gas» (PDF). Phys. Rev. pp. 197–198
- 1 2 Heering, P.; Osewold, D (2007). Constructing Scientific Understanding Through Contextual Teaching. [S.l.]: Frank & Timme GmbH. ISBN 9783865961181
- 1 2 Fletcher, H (1982). «My work with Millikan on the oildrop experiment» (PDF). Phys. Today. pp. 43–47. doi:10.1063/1.2915126. Consultado em 31 de dezembro de 2014. Cópia arquivada (PDF) em 12 de outubro de 2014
- 1 2 Schirber, M (20 de janeiro de 2012). «Landmarks - Millikan Measures the Electron's Charge». Physics. 9 páginas. doi:10.1103/Physics.5.9
- 1 2 Millikan, R.A (30 de setembro de 1910). «The Isolation of an Ion, A Precision Measurement of Its Charge, and the Correction of Stokes's Law». Science. pp. 436–448
- 1 2 di Trocchio, F (1998). «Las mentiras de la ciencia». Ciencia y técnica. Historia de la ciencia. Madrid: Alianza Editorial. pp. 38–42. ISBN 9788420639888
- 1 2 3 4 5 6 7 Millikan, R.A (Abril de 1911). «The Isolation of an Ion, a Precision Measurement of its Charge, and the Correction of Stokes's Law» (PDF). Phys. Rev. pp. 349–397. doi:10.1103/PhysRevSeriesI.32.349
- ↑ Laidler, Keith J.; Meiser, John H. (1982). Physical Chemistry. [S.l.]: Benjamin/Cummings. p. 833. ISBN 0-8053-5682-7
- ↑ Robert Byron, Bird; Warren E., Stewart; Edwin N., Lightfoot. Transport Phenomena 2 ed. [S.l.]: John Wiley & Sons, Inc. p. 61. ISBN 0-471-41077-2
- ↑ Stokes, G. G. (1851). «On the effect of internal friction of fluids on the motion of pendulums». Transactions of the Cambridge Philosophical Society. pp. 8–106. Bibcode:1851TCaPS...9....8S
- 1 2 Serway, R.; Moses, C.; Moyer, C (2004). «Modern Physics». Cengage Learning. ISBN 9780534493394
- ↑ L'Annunziata, M.F (2007). «Radioactivity: Introduction and History». Elsevier. ISBN 9780080548883
- 1 2 Millikan, R.A (1 de agosto de 1913). «On the Elementary Electrical Charge and the Avogadro Constant». Phys. Rev. pp. 109–143. doi:10.1103/PhysRev.2.109
- ↑ Mohr, P.J.; Taylor, B.N.; Newell, D.B (outubro–dezembro de 2012). «CODATA recommended values of the fundamental physical constants: 2010» (PDF). Reviews of Modern Physic. pp. 1527–1579
- ↑ Ehrenhaft, F (1910). «Über die Messung von Elektrizitätsmengen, die kleiner zu sein scheinen als die Ladung des einwertigen Wasserstoffions oder Elektrons und von dessen Vielfachen abweichen». Kais. Akad. Wiss. Wien, Sitzber. math.-nat. Kl. (IIa) S. pp. 815–867
- ↑ Holton, G (1998). «The Scientific Imagination». Harvard University Press. ISBN 9780674794887
- ↑ Millikan, R.A (1916). «The existence of a subelectron?» (PDF). Physical Review. pp. 595–625
- 1 2 Niaz, M (2010). «Innovating Science Teacher Education: A History and Philosophy of Science Perspective». Routledge. ISBN 9781136941955
- ↑ «The Nobel Prize in Physics 1923». Nobelprize.org. Consultado em 12 de dezembro de 2022
- 1 2 Goodstein, D (janeiro–fevereiro de 2001). «In Defense of Robert Andrews Millikan» (PDF) (em inglês). American Scientist. pp. 54–60. Consultado em 31 de janeiro de 2023
- 1 2 Franklin, A. (1997). «Millikan's Oil-Drop Experiments» 1 ed. The Chemical Educator. pp. 1–14. doi:10.1007/s00897970102a. Consultado em 31 de janeiro de 2023
- ↑ «Cargo Cult Science». California Institute of Technology. Consultado em 22 de fevereiro de 2018 (adaptado do discurso de formatura de 1974 no Instituto de Tecnologia da Califórnia), páginas de Donald Simanek, Lock Haven University
- ↑ Feynman, Richard Phillips; Leighton, Ralph; Hutchings, Edward (1 de abril de 1997). "Surely you're joking, Mr. Feynman!": adventures of a curious character. Nova Iorque: W. W. Norton & Company. p. 342. ISBN 978-0-393-31604-9. Consultado em 10 de julho de 2010
- ↑ The NIST Reference on Constants, Units, and Uncertainty (25 de junho de 2015). «2014 CODATA Values: Older values of the constants». NIST. Consultado em 19 de agosto de 2019
- ↑ Millikan, Robert A. (23 de maio de 1924). «The electron and the light-quant from the experimental point of view». Estocolmo. Consultado em 12 de novembro de 2006
- ↑ Birge, Raymond T. (1 de julho de 1929). «Probable Values of the General Physical Constants» (PDF). Reviews of Modern Physics 1 ed. pp. 1–73. Bibcode:1929RvMP....1....1B. doi:10.1103/revmodphys.1.1
- ↑ von Friesen, Sten (junho de 1937). «On the values of fundamental atomic constants». Proceedings of the Royal Society of London. Series A, Mathematical and Physical Sciences 902 ed. pp. 424–440. Bibcode:1937RSPSA.160..424V. doi:10.1098/rspa.1937.0118
Ligações externas
- Thomsen, Marshall, "Good to the Last Drop". Millikan Stories as "Canned" Pedagogy. Eastern Michigan University.
- The oil-drop experiment appears in a list of Science's 10 Most Beautiful Experiments originally published in the New York Times.
- Delpierre, G.R. and B.T. Sewell, "Millikan's Oil Drop Experiment".
- Engeness, T.E., "The Millikan Oil Drop Experiment".
- Cargo cult science, text of the Feynman lecture.
- Millikan Oil Drop Experiment in space[ligação inativa]. A variation of this experiment has been suggested for the International Space Station.





