Casa de Frederick C. Robie
| Casa de Frederick C. Robie | |
|---|---|
| Informações gerais | |
| Estilo dominante | Prairie |
| Arquiteto | Frank Lloyd Wright |
| Construção | 1909–1910 |
| Proprietário inicial | Frederick Carlton Robie |
| Função inicial | Residência |
| Proprietário atual | Universidade de Chicago |
| Função atual | Museu-casa |
| Área | 842,2 m² |
| Patrimônio Mundial | |
| Parte de | Arquitetura do Século XX de Frank Lloyd Wright |
| Critérios | Cultural: (ii) |
| Ano | 2019 |
| Referência | 1496 en fr es |
| Patrimônio nacional | |
| Classificação | Marco Histórico Nacional dos Estados Unidos |
| Data | 27 de novembro de 1963 |
| Geografia | |
| País | |
| Cidade | Chicago, Illinois |
| Coordenadas | 🌍 |
| Localização em Chicago | |
A Casa de Frederick C. Robie é um museu-casa localizado dentro do campus da Universidade de Chicago no bairro de Hyde Park da cidade de Chicago, no Illinois, Estados Unidos. Foi projetada pelo arquiteto Frank Lloyd Wright no estilo Prairie originalmente para servir de residência da família de Frederick C. Robie, um executivo de manufatura. Além de Wright, seus arquitetos associados Hermann V. von Holst e Marion Mahony também ajudaram no projeto, enquanto George Mann Niedecken supervisionou o desenho do interior. A casa foi uma das últimas que Wright projetou em seu estúdio em Oak Park.
Robie comprou o terreno em maio de 1908 e a construção começou no ano seguinte, com as famílias Robie, Taylor e Wilber ocupando a residência em rápida sucessão até 1926, quando foi comprada pelo Seminário Teológico de Chicago. Foi depois disso usada como dormitório, espaço de reuniões e sala de aula, com o seminário tentando demoli-la em 1941 e 1957. O incorporador William Zeckendorf comprou a casa em 1958 e a doou em 1963 para a Universidade de Chicago, que renovou o edifício. Foi em seguida ocupada pelo Instituto Adlai E. Stevenson de Assuntos Internacionais e pela associação de ex-alunos da universidade até ser arredando em 1997 pelo Fundo Nacional para a Preservação Histórica, que opera a casa como museu junto com o Fundo Frank Lloyd Wright. Os interiores e exteriores foram renovados nas primeiras décadas do século XXI.
A casa tem três andares e quatro dormitórios com uma garagem anexa para três carros. O edifício tem uma planta aberta que consiste em dois retângulos grandes e desalinhados. A fachada e os muros do perímetro são feitos principalmente de tijolos romanos com guarnições de concreto, decorações em pedra cortada e janelas de vidro artístico. A casa tem uma área de 842,2 metros quadrados e é dividida em espaços comunais no retângulo sul e aposentos de serviço no retângulo norte. No primeiro andar estão uma sala de bilhar, uma sala de jogos e vários aposentos utilitários. A sala de estar, sala de jantar, cozinha, quarto de hóspedes e quartos dos empregados ficam no segundo andar, enquanto no terceiro andar estão outros três quartos.
A Casa de Frederick C. Robie influenciou vários outros projetos e ajudou a popularizar em residências detalhes arquitetônicos como janelas panorâmicas, telhados protuberantes e garagens em anexo. A casa já foi bastante analisada arquitetonicamente pelo passar das décadas, também tendo aparecido em várias obras midiáticas, incluindo livros e exibições de museu. Foi designada um Marco Histórico Nacional dos Estados Unidos em novembro de 1963 e um Patrimônio Mundial da UNESCO em 2019 junto com outras sete estruturas como parte do conjunto Arquitetura do Século XX de Frank Lloyd Wright.
Local
A Casa de Frederick C. Robie está localizada no número 5757 da Avenida South Woodlawn,[1][2] na esquina com a Rua 58 no bairro de Hyde Park da cidade de Chicago em Illinois, Estados Unidos. O terreno mede 18,3 metros de largura por 54,8 metros de comprimento,[nota 1] com esta dimensão paralela oeste-leste na Rua 58.[4][5][6] A casa em si mede 18,3 por 47,2 metros.[3] A Casa Robie e outras vizinhas estão recuadas em 10,6 metros da Avenida South Woodlawn por causa de um convênio existente no local.[7][8]
O quarteirão imediatamente ao sul estava vazio na época da construção, com o edifício mais próximo ao sul estando a 430 metros de distância, do outro lado do parque Midway Plaisance. O local não era especialmente proeminente por causa da topografia relativamente plana do sul de Chicago.[9] As casas ao norte, ao longo da Avenida South Woodlawn, estavam recuadas da rua e ficavam 61 centímetros a cima da calçada.[7] Estas casas eram feitas principalmente de tijolos.[10] O arquiteto Frank Lloyd Wright caracterizou a residência como uma "moradia urbana", porém na época era mais parecida com uma casa suburbana em um subúrbio de bonde cheio de casas unifamiliares.[11] Ao oeste está a Capela Rockefeller e o Instituto para o Estudo de Culturas Antigas.[12] Ao sul está o edifício da Escola de Negócios Booth da Universidade de Chicago.[13]
História
A casa foi encomendada por Frederick Carlton Robie, um executivo de manufaturas que na década de 1900 trabalhava na Excelsior Supply Company de seu pai.[14][15] Ele se casou em 1902 com Lora Hieronymus e se mudou para Hyde Park dois anos depois, mudando-se novamente em 1907 para outra residência no mesmo bairro.[15] Robie queria uma casa que incorporasse as mais recentes inovações arquitetônicas, em vez de um edifício convencionais com detalhes antiquados.[16][17] Ele esboçou alguns planos e os mostrou para vários empreiteiros, que lhe disseram "Você quer uma daquelas malditas casas Wright".[8][18][19] Robie e Wright conversaram pela primeira vez no final de 1906.[18][19]
Desenvolvimento
Aquisição do terreno e projeto
Robie decidiu construir sua casa no número 5757 da Avenida South Woodlawn, próximo da Universidade de Chicago, a alma mater de Lora, onde ela ainda era socialmente ativa.[20][5] Ele concordou em abril de 1908 em comprar terreno executivo de maquinários de mineração Herbert E. Goodman, mas com a condição de que fosse usado apenas para propósitos residenciais.[20] A compra foi feita em 19 de maio.[20][21][nota 2] Como condição da compra, ele precisava gastar pelo menos vinte mil dólares na casa.[19]
Wright foi contratado para projetar a casa.[8] Robie comentou em 1958 que queria uma casa iluminada por luz natural, com espaços ininterruptos, acessórios simples e bricabraque mínimo.[17][25][26] Ele também queria vários quartos, um berçário e um quintal fechado para seus filhos, também desejando olhar para a rua sem que pedestres conseguissem olhar para dentro.[25][26][27][28] Robie queria evitar estilos arquitetônicos mais antigos, como o estilo Cape Cod, também não desejando uma construção monumental ou closets escuros.[17] Além disso, queria uma casa à prova de fogo, especialmente uma feita de aço e concreto.[28] O historiador Joseph Connors escreveu que as memórias de Robie talvez tivessem sido contaminadas porque ele morou na casa e leu a autobiografia de Wright,[29] já o historiador Donald Hoffmann afirmou que Robie acabou adotando como seus muitos aspectos da filosofia de projeto de Wright.[30] Segundo Hoffmann, a casa seria "radical e masculina", pois o arquiteto projetou a estrutura levando em conta principalmente as necessidades de Robie, não de sua esposa.[31] O orçamento original era de sessenta mil dólares,[32][33] aproximadamente dez vezes o custo de uma casa comum na época.[4][22]
Wright projetou a Casa Robie em seu estúdio em Oak Park, também em Illinois;[34] ele na época estava preocupado com vários outros projetos, assim a residência para Robie não era algo especialmente urgente.[35] Wright primeiro elaborou os planos para a casa mentalmente; diferentemente de seus contemporâneos, ele se focava na simetria e proporções do edifício em vez das dimensões exatas. O arquiteto sentou-se certa noite com um papel em branco e esboçou os primeiros três diagramas da casa.[36] Wright prestou tanta atenção aos detalhes arquitetônicos que chegou a elaborar plantas apenas para os carpetes.[37] Os planos originais da casa talvez tenham sido descartados ou destruídos, porém plantas e renderizações ainda existem.[38] Robie assinou as plantas de trabalho no final de março de 1909,[21][39] com a construção começando pouco depois.[21][40]
Construção
A H. B. Barnard Co. foi contratada como empreiteira.[19][40] A casa não precisou de fundações profundas e o núcleo estrutural, a chaminé, foi construído rapidamente.[19][41] Robie afirmou que o próprio H. B. Barnard inspecionava a alvenaria toda vez que os trabalhadores colocavam duas ou três fileiras de tijolos.[23][41] Frederick Robie Jr., filho de Robie, comentou que brincava em montes de areia (material usado na argamassa da fachada) e andava pelas passarelas que os construtores tinham erguido.[33] Parte da alvenaria precisou ser desmontada depois dos pedreiros terem construído acidentalmente cinco pegões, em vez de dois pegões e três postes de armação, sob a varanda sul.[42]
Os trabalhos no interior ocorreram pelo final de 1909,[43] com Wright indo para a Europa na mesma época.[44][45][46] Ele contratou o projetista de interiores George Mann Niedecken para mobilhar a casa.[44][47] Niedecken supervisionou a decoração do interior e o esquema de cores.[46] Também se envolveram no projeto o arquiteto Hermann V. von Holst e a desenhista Marion Mahony.[47] A casa estava quase completa no início de 1910.[40] A mobília chegou em fevereiro, as cortinas em março e os carpetes em abril.[32]
Uso como residência

A casa foi usada como residência por menos de vinte anos. Durante este período, foi ocupada em sucessão por três famílias diferentes: primeiros os Robie, seguidos pelos Taylor e por fim os Wilber.[48][49] A família Robie, composta por Frederick e Lora mais seus filhos Frederick Jr. e Lorraine, se mudaram em maio de 1910, porém a maior parte das decorações só foram finalizadas vários meses depois.[32][46] Robie afirmou em 1958 que a casa custou 59 mil dólares, dos quais catorze mil foram do terreno, 35 mil para o projeto e construção e dez mil para as mobílias.[22][23][24] Isto era muito mais do que o estúdio de Wright em Oak Park, que custou 4,7 mil dólares em 1889; a Casa Winslow, que custou vinte mil em 1892; ou a Casa de Ward W. Willits, que custou vinte mil em 1903.[24]
Os Robie, apesar da enorme quantia que gastaram com a casa, foram donos da casa por apenas dois anos e meio,[48][49] vivendo nela por pouco mais de um ano.[50] O pai de Robie morreu pouco depois da família se mudar[50][51] e Robie se ofereceu para pagar as dívidas de seu pai, que supostamente totalizavam por volta de um milhão de dólares.[50][52][53] Lora, que afirmou que seu marido era infiel,[53] se mudou para fora da casa em abril de 1911 e depois pediu por divórcio, que foi finalizado no final do ano seguinte. Robie se mudou para Nova Iorque enquanto Lora e os dois filhos foram para Springfield.[50] Robie Jr. afirmou que a família levou apenas uma cama quando se mudaram.[54] Robie declarou falência em 1913 e relatou que tinha ativos que totalizavam 25 672 dólares, quase tudo consistindo de um empréstimo hipotecário de 25 mil da Union Trust Company sobre a casa.[55][56] Wright, apesar dos diversos problemas pessoais de Robie, posteriormente falaria que a residência de Hyde Park era "uma boa casa para um bom homem".[53]
A casa foi vendida em dezembro de 1911[50][57] para David Lee Taylor, na época o presidente da agência de publicidade Taylor-Critchfield Company.[48] O preço final da venda foi aproximadamente vinte por cento menor do que o custo de construção.[47] Phillips, filho de Taylor, tinha dez anos quando seu pai comprou a casa e anos depois relembrou que frequentemente corria voltas ao redor da sala de estar e da sala de jantar, porém não era acompanhado por seus irmãos.[58] Taylor morreu dentro da casa em 22 de outubro de 1912, menos de um ano depois de comprar a residência.[59][60] Ellen Taylor, sua viúva, vendeu em novembro a casa e a maior parte de seu conteúdo para Marshall Dodge Wilber, o tesoureiro da Wilber Mercantile Agency.[58][61][62] Wilber supostamente pagou 45 mil dólares pela residência.[61][62] Ele, sua esposa Isadora e suas duas filhas viviam na época perto dali em uma casa na Avenida Dorchester. Segundo Phillips, os únicos objetivos que sua mãe levou foram uma luminária, uma cadeira e um humidor.[58]
Os Wilber se mudaram em 3 de dezembro de 1912,[51][63] vivendo no local por catorze anos.[47][57] A sala de bilhar se transformou em uma sala de música e a sala de estar se transformou em um salão. Os Wilber empregavam um cozinheiro e uma "segunda garota", que vivia no local, e um faz-tudo, que ia para a casa todos os dias.[63] A residências algumas vezes sediava eventos, como encontros da Sociedade Dramática de Chicago e dos Quadrângulos da Universidade de Chicago.[64][65] Wilber também construiu uma oficina perto da garagem, enquanto Isadora contratou três homens por volta de 1913 para restaurarem a fachada.[63] O telhado e três janelas foram substituídos em 1916 e a família decorou a casa com várias fotografias de sua filha Marcia depois dela ter morrido naquele ano aos 25 anos.[66] A caldeira original a carvão não era eficaz em aquecer a casa no inverno, assim os Wilber instalaram uma fornalha a óleo em 1919, substituindo-a em 1921. Jeannette, a filha restante do casal, comentou que Wright frequentemente visitava a casa com pouco aviso prévio.[67] Jeannette se mudou em 1926.[67] Wilber estava na casa dos sessenta anos e com a saúde ruim, desejando vender a casa.[51][67]
Seminário Teológico de Chicago
Décadas de 1920 a 1950

Os Wilber venderam a casa em junho de 1926 para o Seminário Teológico de Chicago,[51][68] cujo campus ficava ao sul.[57] O seminário pagou noventa mil dólares pela casa e as mobílias, que permaneceram praticamente intactas, exceto por uma colcha que Isidora levou como lembrança.[68] A estrutura originalmente seria usada como edifício administrativo até que o seminário construísse um novo.[69] A casa foi usada como dormitório, espaço de reunião e sala de aula,[49] porém o seminário desejava no longo prazo construir algo novo no terreno.[57][70] Alguns móveis foram armazenados,[57] com o seminário também algumas vezes abrindo a casa para visitação.[48][57] O arquiteto Ludwig Mies van der Rohe, o diretor do Instituto de Tecnologia de Illinois, foi um daqueles que visitou a casa.[71]
O seminário considerou em 1941 demolir a casa,[71][72] que na época era um dormitório feminino.[72] Um estudante do Instituto de Tecnologia de Illinois descobriu sobre a demolição e informou seus professores, incluindo Mies. Autores como Alexander Woollcott, Carl Sandburg e Lewis Mumford, bem como arquitetos como Buckminster Fuller e Eliel Saarinen, protestaram.[71] William F. Deknatel, um dos aprendizes de Wright, liderou um comitê para defender a preservação da casa.[71][73] Os planos acabaram adiados pela Segunda Guerra Mundial.[73] O seminário pediu em 1952 por uma variância de zoneamento para permitir a conversão do primeiro andar em um dormitório.[74] A casa no final da década estava sendo usada para conferências,[75][76] com boa parte de suas decorações tendo sido destruídas.[70] O edifício na época era conhecido como Casa de Conferências.[77]
Planos de reconstrução
Lawrence A. Kimpton, o presidente da Universidade de Chicago, estava planejando reconstruir o bairro ao redor da Casa Robie.[78] Como parte do projeto, a firma de arquitetura Holabird & Root foi contratada para projetar um dormitório para ser construído no lugar da residência.[75][79] O vereador Leon Despres, que representava o bairro, em resposta a um pedido de uma professora local, apresentou uma resolução no Conselho Municipal de Chicago para a criação de uma comissão de marcos históricos.[79] O seminário anunciou oficialmente em março de 1957 que substituiria a casa por um dormitório,[75][78] algo que também envolveria a demolição da Casa Goodman e da casa da fraternidade Zeta Beta Tau imediatamente ao norte.[80] O seminário planejou começar a demolição da casa em setembro,[81] afirmando que custaria até cem mil dólares para modernizar o edifício.[82][83] Arthur Cushman McGiffert, o presidente do seminário, também disse que duas instituições tinham recusado a oferta de assumir a casa e mudá-la de lugar.[83]
Arquitetos, alunos e artistas expressaram oposição contra a demolição, assim como Despres e o prefeito Richard J. Daley.[84] A Universidade de Belas Artes de Hamburgo,[85] o Instituto Americano de Arquitetos[86] e os membros do estúdio Taliesin de Wright também foram contra.[79] O próprio Wright foi para a Casa Robie em 18 de março protestar,[82][87] dizendo "Tudo isso demonstra o perigo de confiar qualquer coisa espiritual ao clero".[70][88] Ele afirmou que a casa estava relativamente em boas condições "considerando o abuso que sofreu",[82][87] com a cozinha sendo a única parte decrépita da estrutura.[89][90] Também afirmou que podia reparar a casa por quinze mil dólares.[76] McGiffert ofereceu mudar a casa para o Parque Jackson ou Midway Plaisance,[91] mas Wright achou que seria inapropriado.[92] Dentre outras coisas, custaria centenas de milhares de dólares desmontar a casa e reconstruí-la em outro local.[93] Wright se ofereceu para projetar um dormitório para o seminário caso a Casa Robie permanecesse no lugar, mas o seminário recusou.[87][91] O governo municipal designou a casa como um marco histórico de Chicago em abril[92][94] e um comitê de três pessoas foi formado em julho para preservá-la.[95]
Enquanto isso, a fraternidade Phi Delta Theta da Universidade de Chicago,[nota 3] se ofereceu para trocar sua propriedade três casas ao norte pela Casa Robie.[80][81][83] A demolição foi adiada enquanto o seminário e a fraternidade negociavam. O seminário chegou a um acordo provisório em outubro para dar a residência à Fundação Frank Lloyd Wright caso esta angariasse duzentos mil dólares. A Phi Delta Theta e Zeta Beta Tau ofereceram-se para doar suas casas para o seminário.[81] Julian Levi, que liderava a Comissão do Sudeste de Chicago, perguntou ao seu amigo William Zeckendorf, cuja firma de incorporação imobiliária Webb and Knapp estava desenvolvendo estruturas em Hyde Park, se ele não estava interessado em ocupar a casa temporariamente.[93] Zeckendorfse ofereceu em dezembro para comprar a Casa Robie por 125 mil dólares.[81][96][97] O seminário, para facilitar a venda, solicitou em fevereiro de 1958 permissão para rezonear os terrenos imediatamente ao norte.[98] Um subcomitê do Conselho Municipal recomendou em agosto que o rezoneamento fosse aprovado.[99] Aline B. Saarinen do The New York Times comentou que a preservação da casa "foi uma luta árdua durante todo o caminho".[100]
Zeckendorf e Universidade de Chicago
Aquisição e revenda

Zeckendorf adquiriu a casa em agosto de 1958,[101] pagando 102 mil dólares em troca de permitir que o seminário aprovasse qualquer venda posterior.[102] Ele planejou ocupá-la por quatro anos.[96][97] Zeckendorf antes planejava doá-la ao Fundo Nacional para Preservação Histórica,[93][97] sugerindo que a estrutura poderia ser convertida em uma biblioteca ou museu.[96][103] Entretanto, ele anunciou imediatamente depois da compra que iria doá-la para a Fundação Frank Lloyd Wright. O acordo com o seminário especificava que o Fundo Nacional assumiria a casa, porém o próprio Fundo Nacional concordou com a doação para a fundação.[101] Houve sugestões extraoficiais de transformar a casa na residência do prefeito de Chicago[104] ou em um estúdio para artistas.[105]
A Webb and Knapp desocupou a Casa Robie em fevereiro de 1962 depois de seus projetos no Hyde Park acabarem, com Zeckendorf querendo doá-la para uma "organização responsável" para preservação.[106] A Universidade de Chicago concordou em junho em assumir a casa em troca de dar ao seminário um terreno próximo.[107] Um comitê foi formado dois meses depois para levantar 250 mil dólares para a restauração.[108][109] William Hartmann da firma de arquitetura Skidmore, Owings & Merrill afirmou que os reparos estruturais custariam 198 mil, enquanto o restante seria gasto nas mobílias.[108] Houve sugestões para que a casa fosse convertida em uma residência para acadêmicos visitantes, para o presidente da universidade ou servisse de sala de aula para algum departamento da universidade.[110] Outra proposta era para o Serviço Nacional de Parques assumir a casa e operá-la como monumento.[111] Independentemente da opção escolhida, a universidade planejava permitir visitantes na casa.[107][112] A universidade assumiu formalmente a propriedade da Casa Robie em 4 de fevereiro de 1963,[113][114] concordando em ocupar o edifício e administrá-lo.[115]
A universidade começou imediatamente a angariar dinheiro para a restauração;[112][115][116] nesta altura, as paredes do porão estavam vazando, a pintura estava descascando e as fiações e sistemas mecânicos estavam desatualizados.[113] Mais de cem arquitetos e acadêmicos de todo o mundo foram nomeados para o comitê de restauração.[117] A universidade queria usar os andares inferiores como uma centro de conferências, enquanto os quartos do terceiro andar como acomodações para acadêmicos visitantes.[118] Estudantes de várias universidades começaram a visitar a casa em abril de 1963,[119] com o comitê levantando 31 mil dólares até agosto.[120] Dentre os doadores para a restauração estava a Fundação de Caridade Edgar J. Kaufmann[114] e a Fundação Americana.[121] O comitê gastou 975 dólares no final de 1963 para consertar danos causados pelo clima do inverno,[122] levantando aproximadamente quarenta mil dólares até o início de 1964.[123][124] O comitê de arrecadação de fundos continuou a realizar visitas pela casa para ganhar mais dinheiro.[125][126] Ira J. Bach, que liderava o comitê, afirmou que mais dinheiro era necessário, mesmo com doações vindas de ao redor do mundo.[123]
Uso

A Fundação Frank Lloyd Wright determinou em fevereiro de 1965 que a casa poderia ser restaurada por 109 mil dólares em vez dos 250 mil planejados.[90] A firma de arquitetura Taliesin Associated Architects, composta por antigos aprendizes de Wright, foi contratada para projetar a renovação.[127] As obras começaram em meados de 1965, após a Universidade de Chicago ter arrecadado aproximadamente 55 mil dólares.[102][128] A casa também foi aberta para o público aos sábados,[129] com o ingresso custando um dólar, dinheiro que seria destinado à renovação.[130] A primeira fase incluía atualizações à impermeabilização, encanamento, aquecimento e telhado.[127][128][131] A H. B. Barnard Co., a empreiteira original da Casa Robie, foi contratada para reconstruir o telhado,[129] porém o novo telhado era mais vulnerável a danos de água do que o original.[52] As superfícies de gesso também foram repintadas, enquanto as armações das janelas substituídas.[117] A segunda fase envolveu renovar os interiores, enquanto o resto da restauração foi cancelada por falta de dinheiro.[131] A casa ainda estava desocupada em 1966 e a Universidade de Chicago precisava de mais duzentos mil dólares.[130] Neste mesmo ano, o Departamento de Habitação e Desenvolvimento Urbano dos Estados Unidos anunciou um programa de preservação para edifícios históricos de Chicago, o que proporcionaria o dinheiro para a restauração da Casa Robie.[132]
O deputado federal Adlai Stevenson III anunciou em julho de 1966 que o recém-formado Instituto Adlai E. Stevenson de Assuntos Internacionais, um laboratório de ideias dedicado a causas de esquerda, ocuparia a Casa Robie.[133][134] A intenção do instituto era converter parte do espaço em escritórios e sediar encontros e seminários.[134] Não havia problemas estruturais, assim a Skidmore, Owings & Merrill foi contratada para remobiliar a casa e adicionar alguns novos móveis. O salão de entrada no térreo se tornou uma recepção, a sala de bilhar virou uma biblioteca e a sala de jogos foi transformado em um salão de seminário.[135] A sala de estar foi convertida em lounge, a sala de jantar manteve sua função e os quartos de hóspedes do segundo andar se tornaram escritórios de relações públicas. Os quartos do terceiro andar também viraram escritórios.[136] O instituto se mudou para a casa em fevereiro de 1967,[137] sediando sua primeira festa em janeiro de 1968.[138] A Casa Robie não era adequada como local de trabalho para os 25 funcionários do instituto, mas a Universidade de Chicago permitiu continuasse no local sem pagar aluguel.[139] Algumas das decorações foram danificadas em um roubo em maio de 1970.[140][141]
O Instituto Stevenson se fundiu formalmente com a Universidade de Chicago em 1975 e esta continuou a usar as salas de reuniões da casa.[142] O instituto também permitia que o público marcasse hora para visitar a casa.[143] O escritório de desenvolvimento da universidade usou o local, sucedido pela associação de ex-alunos.[144] A Casa Robie estava servindo de sede para a associação de ex-alunos na década de 1980.[49][145] O jornalista Robert Campbell do Boston Globe descreveu a casa na época como deteriorada, com paredes rachadas, tinta descascando e decorações danificadas por conta de reparos de retalhos. Enquanto isso, a Universidade de Chicago gastou apenas quinze mil dólares anualmente na manutenção e nem chegou a tentar obter dinheiro de fontes externas.[145] O local estava cheio de mesas e armários.[49] A universidade continuou a realizar visitas guiadas pagas,[49][146] porém fotografias não eram permitidas.[147] Além disso, as visitas ao interior abrangiam apenas dois[147][148] ou três aposentos.[149]
Fundo Frank Lloyd Wright
A Universidade de Chicago começou no início de 1992 a negociar para que a Fundação da Casa e Estúdio de Frank Lloyd Wright (depois o Fundo Frank Lloyd Wright) assumisse a operação da casa.[144][150] Foi anunciado em fevereiro de 1995 que o edifício se tornaria um museu-casa.[148][150] A universidade gastaria 2,5 milhões em renovações.[150][151] O Fundo Nacional para Preservação Histórica concordou em arrendar a casa em outubro de 1996,[152] com a universidade deixando o local no início de 1997.[144][153]
Décadas de 1990 e 2000
O fundo começou a realizar visitas mais frequentes,[154][155] abrindo uma livraria na garagem em agosto de 1997.[154] Foi planejada para 2001 uma restauração de dez anos[156] que custaria sete milhões de dólares.[157][158] Os tijolos tinham rachado por congelamento e descongelamento repetidos,[159] também existindo manchas, cupins e varandas deterioradas.[52][160] Além disso, o telhado estava vazando e o sistema de aquecimento era ineficaz.[161] Isto fez com que o fundo criasse um plano mestre para a renovação.[162] Trabalhadores removeram amianto do local em 1999.[157][163] A casa recebeu uma concessão de um milhão de dólares para a restauração vindos da Fundação Pritzker e do programa federal Salve os Tesouros da América.[4][164] O governo de Illinois também doou dois milhões de dólares por meio do programa Illinois Primeiro, o que cobriu o restante da primeira fase da renovação.[4]
A renovação começou em 2002,[162] porém visitas continuaram.[154][165] A firma de conservação e restauração Gunny Harboe Architects supervisionou os trabalhos.[166][167] Os trabalhadores documentaram os vidros artísticos, sistemas mecânicos e clima da casa como parte da primeira fase, adicionaram banheiros acessíveis por cadeirantes e criaram desenhos arquitetônicos.[162] Danos de água também foram consertados, o telhado substituído e as infestações de cupins combatidas.[160][168] Além disso, novos sistemas mecânicos e utilitários foram instalados, enquanto a fachada e terraços estabilizados.[168] A Belden Brick, a fabricante original dos tijolos, produziu tijolos substitutos para a casa.[52] Os trabalhos terminaram em 2003.[4][169] O terceiro andar permaneceu fechado para o público,[158] pois não cumpria os regulamentos de segurança contra incêndio de Chicago.[4][170]
A segunda fase envolvia renovar os interiores, porém foi adiada por falta de dinheiro.[4][171] A visitação e consequentemente a renda diminuiu depois dos ataques de 11 de setembro de 2001;[4] o fundo nessa época precisava de mais quatro milhões para restaurar o interior.[160][171] O fundo vendeu tijolos gravados para ajudar a financiar a renovação da Casa Robie e da Casa e Estúdio de Wright.[172] Trabalhos na despensa e cozinha começaram entre 2006 e 2007[169] ao custo estimado de três milhões.[166][173] A casa continuou a receber visitantes e eventos.[174] Visitantes começaram a ser permitidos no terceiro andar e nos quartos de empregados em 2009, além de também poderem interagir com artefatos.[175] A casa nessa época estava recebendo trinta mil visitantes por ano.[52] O fundo queria reproduzir ou construir réplicas das decorações e acessórios originais.[169]
Década de 2010 em diante
O Fundo Frank Lloyd Wright continuou a arrecadar dinheiro para a renovação.[176] A casa recebeu em 2014 uma concessão da iniciativa Mantendo-o Moderno da Fundação Getty;[177] esta concessão era de cinquenta mil dólares e este valor foi usado para desenvolver um plano de preservação.[178][179] O fundo nesta altura já tinha arrecadado dois milhões de dólares dos seis milhões projetados para o orçamento da renovação.[178] Neste mesmo ano a casa se tornou parte do Museu Campus Sul, um grupo de museus no Hyde Park.[180] A restauração dos interiores começaram em 2017,[6] abrangendo os primeiros dois andares.[167] Os trabalhos se focaram em elementos internos, como marcenarias, vidros e mobílias.[181] Elementos originais de projeto que foram restaurados incluíram carpintarias e arandelas,[166] com o projeto também envolvendo repintar a casa para suas cores originais e reparar a porta original.[167][173][182] O fundo pegou algumas das mobílias originais da casa emprestadas do Museu Inteligente de Arte.[173]
A restauração terminou em março de 2019[173][182] ao custo de 3,5 milhões de dólares.[6] O projeto de renovação custou no total mais de onze milhões.[181][183] Visitações foram suspensas em março de 2020 pela pandemia de COVID-19.[184] A casa foi reaberta em junho,[184][185] porém os grupos foram inicialmente restringidos a oito pessoas.[185]
Arquitetura
A Casa de Frederick C. Robie[186] foi projetada no estilo Prairie.[187][188] Wright queria que a arquitetura, arte e mobílias tivessem um projeto consistente;[174] ele queria que a casa fosse um Gesamtkunstwerk, um trabalho de arte ideal.[22][46] Muitos componentes da Casa Robie são simétricos ou quase simétricos,[189] porém a casa como um todo é assimétrica.[190] O autor Joseph Connors escreveu que o uso de detalhes assimétricos por Wright foi inspirado nos ensinamentos de Friedrich Fröbel e da francesa École des Beaux-Arts.[189] O projeto compartilha elementos com a Casa de F. F. Tomek em Riverside, no Illinois,[7][191] e com o Edifício Administrativo Larkin em Buffalo, em Nova Iorque, ambos também projetados por Wright.[192] Connors citou ainda o Clube Náutico Yahara em Madison, no Wisconsin, e o Clube de Tênis de River Forest em River Forest, no Illinois, como outros predecessores da Casa Robie.[193]
Wright evitou em grande parte os plantas cruciformes e cata-vento que havia usado em casas anteriores.[39] A casa ainda usa uma variação do cata-vento, porém um em que o eixo oeste-leste é mais enfatizado do que o norte-sul.[194][195] A planta baixa tem dois grandes retângulos, ou "naves", desalinhados.[35][196] Cada nave tem aproximadamente metade do comprimento do terreno.[35] A nave principal ao sul segue em sentido oeste e contém os espaços comunais,[35][197] terminando em tramos em formato de proa ao oeste e leste.[194][198] A nave secundária ao norte segue para leste e contém as áreas de serviço, como cozinha e salão de entrada.[39][197]
Exterior
Diferentemente de casas semelhantes, que tinham telhados apoiados por alvenaria estrutural, os telhados da Casa Robie ficam em balanço para fora do núcleo da casa. As paredes externas são tratadas como muros cortina.[199] Além disso, Wright queria que as pessoas vissem a casa principalmente da esquina sudoeste.[200] Wright, diferentemente de seus contemporâneos, que priorizavam o projeto do exterior sobre o interior, acreditava que o projeto da fachada deveria ser subordinada às funções internas da casa.[126]
Wright projetou a casa como um edifício longo e baixo pelo terreno ser plano e significativamente mais longo em um lado,[7][11] similar a outros edifícios no estilo Prairie.[188] Desta forma, mesmo a casa tendo três andares, a impressão é que ela tem um andar com um pequeno sótão.[11] A grande ênfase horizontal era algo atípico em residências contemporâneas, que geralmente enfatizavam detalhes verticais.[2][201] Segundo Wright, o projeto baixo tinha a intenção de dar à casa uma "relação mais íntima com o ambiente externo e vistas de longo alcance".[202] A casa é decorada com urnas e floreiras já que o arquiteto não pode adicionar um jardim.[1][203] Os principais aposentos no segundo andar são elevados;[3][7] isto proporciona privacidade, pois permite vistas para fora ao mesmo tempo que impede que transeuntes olhem para dentro.[16][174][196] A casa está recuada em relação à Avenida South Woodlawn, mas o telhado principal e um muro perimetral estão além da elevação oeste da fachada, reduzindo o efeito visual do recuo.[203][204]
Fachada

A casa fica em cima de uma plataforma feita de concreto,[1][205] enquanto a fachada é feita principalmente de tijolos.[3] O concreto foi usado para as varandas, silhar para os peitoris das janelas e cavaletes, e armações de madeira para o terceiro andar.[43] Segundo Frederick Robie Jr., Wright encomendou tijolos customizados para a casa que mediam 41 por 295 milímetros.[33] Os tijolos estreitos e baixos da fachada foram colocados horizontalmente.[1][197][205] Os tijolos são coloridos de lilás, vermelho e laranja com manchas escuras espalhadas.[4][205] Wright enfatizou ainda mais o eixo horizontal ao aprofundar as juntas horizontais entre cada fileira de tijolos,[110][113] ao mesmo tempo que preencheu as juntas verticais.[206] As juntas horizontais foram preenchidas com argamassa em meados do século XX.[110][113] A plataforma de concreto da base e os peitoris e cavaletes de silhar também estão orientados horizontalmente, enfatizando mais que a casa tem pouca altura.[205] A fachada norte é uma simples parede de tijolos.[207] A chaminé tem formato de "L" e ascende do centro da casa, sendo encimada por área fechada tijolos que leva a uma varanda na cobertura.[208]
Wright incorporou à fachada as faixas horizontais das janelas.[209] Estas janelas são feitas de vidros artísticos para misturar a distinção entre espaços externos e internos[210] e iluminar os aposentos.[143] Diferentemente das janelas de guilhotina dupla, que têm painéis deslizantes empilhados uns sobre os outros, Wright usou janelas de batente, que ficam lado a lado e podem abrir para fora.[211] Há 175 painéis de vidro artístico[52][170][212][nota 4] arranjados em 29 padrões.[201] Esses painéis apresentam temáticas geométricas intrincadas e orientadas verticalmente.[211]
A entrada principal leva ao primeiro andar[203][213] e está recuada da fachada oeste.[214][215][216] O pátio de entrada tem um piso de ladrilhos vermelhos.[214][216] Uma escadaria leva a uma varanda suspensa ao oeste do segundo andar.[203][214] Há outras três entradas a partir da entrada de carros, levando à sala de jogos do primeiro andar, à lavanderia e sala da fornalha, e à cozinha do segundo andar.[217] Um portão ornamentado ficava na entrada de veículos.[217][218] Uma parede perimetral de tijolos corre pelos limites norte e leste do terreno.[207][219] Tinha um andar de altura,[189] mas foi reduzida na década de 1960[220] para proporcionar tijolos para a construção de um depósito perto da garagem.[3]
A garagem anexa ode acomodar três carros.[113][213] Uma garagem desse tipo era uma novidade na época que a casa foi construída;[111][221] carros na época eram considerados especialmente vulneráveis a incêndios, assim as casas geralmente tinham garagens separadas.[222] Wright adicionou uma lacuna ao telhado para separar visualmente a garagem do resto da casa, também adicionando postes e vergas abaixo da lacuna do telhado.[223] A garagem hoje é usada como livraria do museu.[154][212]
Varandas e telhados
Há várias varandas em níveis diferentes da casa.[224] A maior delas está no lado sul do segundo andar,[7][206][215] tendo um parapeito de tijolos.[16] Ela tem 12,2 metros de comprimento[46] e é acessada por uma fileira de doze portas.[125][225][226] Essa varanda é apoiada por várias vigas de metal que ficam escondidas embaixo de cavaletes de pedra e flanqueados por colunas de tijolos.[206] Wright adicionou um poço em cada extremidade da varanda durante a construção, com as portas ao lado desses poços sendo convertidas em janelas.[226] Sob a varanda estão dois pegões de tijolos alternados com três mourões de tijolos com metade da altura dos pegões.[42] Há outra varanda ao noroeste, uma sacada ao oeste e várias sacadas menores penduradas do edifício.[7] A sacada oeste mede 2,9 metros de largura e está em balanço da fachada oeste.[46]
A casa é encimada por vários telhados de quatro águas com inclinações rasas[3] e feitos de telhas vermelhas do tipo Ludowici.[227] Os telhados possuem beirais protuberantes, outro elemento para enfatizar a orientação horizontal da fachada,[1][8] e também há calhas de bronze viradas para cima.[228] Um beiral acima do segundo andar permite que a luz seja refletida da varanda do segundo andar para as salas de estar e jantar. Há um beiral mais profundo acima dos quartos do terceiro andar.[216]
Interior
A casa tem 842,2 metros quadrados,[46] com quatro quartos, seis banheiros, onze closets e aposentos dos empregados.[24] Diferentemente de residências contemporâneas, a Casa Robie tem vários espaços com planta aberta,[2] carecendo de aposentos como uma sala de leitura e salão das mulheres.[190] Wright usou pés direito baixos,[49][90] justapondo-os com pés direito altos para efeito estético.[229] A superestrutura é feita de vigas de aço horizontais e pegões de tijolos.[1][230] Aço foi amplamente usado, incluindo embaixo das varandas e no teto da sala de estar,[220] o último dos quais utiliza vigas de aço aparafusadas de 38 centímetros de espessura.[33][46] A casa tinha um sistema de iluminação central[231][232] operado a partir de três painéis de controle.[111] Também havia um sistema à vácuo central,[58][190] alarmes contra roubo e incêndio,[232] válvula para irrigar as floreiras[58] e sistema de aquecimento e refrigeração.[231][233] Radiadores para o sistema de aquecimento e refrigeração estão escondidos em gabinetes,[234] também existindo quatro lareiras.[201]
Os aposentos foram decorados em cores creme, marrom, ocre e salmão.[46] Tinta de textura mais áspera foi usada nos quartos, já tinta mais lisa foi usada nas áreas comuns.[6] A casa era originalmente iluminada por trinta arandelas projetadas por Wright, das quais apenas duas ainda permaneciam na década de 1960.[235] Ele projetou dois tipos de arandelas: com elementos de carvalho e latão para os quartos e outros espaços privados e com elementos de vidro congelado para as áreas comunais.[52] Há oito telas de carvalho inspiradas na arte japonesa e que servem de partições; cada tela consiste em barras quadradas de 41 milímetros de espessura.[236] Algumas janelas têm persianas de enrolar para maior privacidade.[211] O closet de Lora Robie inclui ganchos embutidos, já que cabides ainda não tinham sido inventados na época que a casa foi construída.[237]
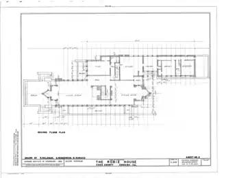
Primeiro andar

Diferentemente dos andares superiores, o primeiro andar (ou térreo) é mais escuro e com tetos baixos.[238][239] Da entrada principal é preciso seguir um caminho circular para acessar o resto da casa.[203] O vestíbulo de entrada está na nave norte[240] e tem uma placa na parede leste.[236] As salas de bilhar e jogos estão ao sul do vestíbulo; um armário de casacos e uma escada para a cozinha do segundo andar estão ao leste, enquanto um banheiro está ao norte.[240] A porta do armário de casacos e a porta sul do vestíbulo possuem telas de carvalho móveis. Também há uma alcova de janela na parede norte ao lado de um radiador com três janelas.[241]
A sala de bilhar costumava ficava na extremidade oeste da nave sul e a sala de jogos na extremidade leste.[110][242] A parede oeste da sala de bilhar não tem janelas, existindo principalmente para apoiar a sala de estar acima, mas também pode ser usada como espaço de armazenamento ou adega.[211] A parede norte tem janelas clerestório com temas de losango.[243] Na parede sul está um pequeno jardim e varanda de concreto.[11][243] A sala de bilhar é separada da sala de jogos por uma escada que leva ao segundo andar.[213][238] Na sala de jogos há um banco em balanço em um recesso[218] e um nicho em formato de proa ao leste.[90][218] Ambas as salas possuem lareiras individuais.[201] Donos posteriores usaram divisórias de madeira e gesso cartonado para dividirem as salas em seis aposentos.[110]
A casa tem um porão parcial com uma usina de caldeira.[3][118][230] Não há um porão completo porque o terreno era um pântano[3] e porque Wright não queria escavar a "argila úmida e pegajosa da pradaria". A usina de caldeira, consistindo de uma sala de carvão e uma sala da fornalha, fica quatro degraus abaixo da superfície.[240] Está na extremidade oeste da nave norte, junto com a sala de casacos, lavanderia e oficina. Na extremidade leste da nave norte está a garagem.[242] Poços de manutenção ficavam na garagem,[4][174] mas foram preenchidos quando a garagem foi convertida em escritórios. A garagem e outros aposentos de serviço só podem ser acessados pelo lado de fora.[240]
Segundo andar

Wright, ao projetar o segundo andar, queria eliminar "caixas ao lado ou dentro de outras caixas" ao borrar os limites entre os cômodos.[110] Os aposentos eram distintos uns dos outros pelo uso de diferentes armários e carpetes.[244] A escada do centro do primeiro andar leva para um saguão intermediário no segundo andar, entre as duas naves.[215][239][244] Esse saguão é separado da nave sul por uma tela de ripas de madeira de 1,5 metro de altura.[245] Portières móveis estão penduradas acima das portas.[238][244] Além disso, o saguão tem uma prateleira de livros na parede norte e uma porta leva ao noroeste para a varanda do quarto de convidados.[244]
As salas de estar e jantar na nave sul têm elementos similares e são separadas apenas por uma lareira.[228][242] Seus tetos têm alturas variáveis, dividindo ambas em três tramos de norte a sul.[24][246] Os tramos externos tem tetos de 2,3 metros de altura, enquanto o tramo central tem tetos de 2,7 metros.[246] Tábuas de madeira, projetadas para se assemelharem a vigas do teto, abrangem toda a largura do teto.[231][246] Os espaços são iluminados por lâmpadas em recessos acima dos tramos (escondidas atrás de grades) ou por lâmpadas esféricas.[24][246][247] Também há um fumeiro de chaminé e aberturas de ventilação perto do teto, além de duas vigas de aço que sustentam o telhado.[246] A varanda sul da casa estende-se entre as salas de estar e jantar,[228][248] com ambos também tendo telas de madeiras decorativas.[238][244]

A sala de estar ocupa o canto oeste da nave sul.[242] A proa na parede oeste serve como nicho[89][246] e tem janelas e portas com vidro multicolorido.[249] Há cinco janelas de batente na parede norte, enquanto na seção oeste da parede sul há uma janela estreita e uma janela de batente. O carpete é decorado com um retângulo rosa e uma dúzia de quadrados verdes.[247] A lareira entre as duas salas possui pegões de tijolos estreitos[250] e um lintel de pedra.[111] Essa lareira é mais cerimonial, pois a casa é aquecida por radiadores escondidos.[246][250] A sala de jantar está ao leste da sala de estar;[242] sua parede leste tem um cantinho de café da manhã dentro de uma janela saliente.[238] Na parede norte está um aparador de madeira que complementa as portas na parede oposta.[245][251]
A nave norte estão os aposentos dos empregados, uma cozinha e quarto de hóspedes.[194][252] Este fica no canto oeste[242] e tem um carpete com temas de quadrados e barcos.[253] O banheiro de hóspedes tem janelas de vidro congelado,[252] com uma varanda ao lado do quarto pendendo sobre o pátio de entrada.[238][239] Uma escada separa o quarto de hóspedes da cozinha, que fica localizada no centro da nave norte.[242] A cozinha tem um projeto simples com janelas de batente e algumas decorações de madeira e vidro.[254] Há três cômodos para empregados na extremidade leste da nave norte,[24][126] acima da garagem.[213] Eles consistem em dois quartos para empregadas domésticas e uma sala de jantar para os empregados.[24][242] Esses quartos possuem caixas de flores, janelas de batente e tetos inclinados.[254]
Terceiro andar
A escada leva do segundo ao terceiro andar, que Wright descreveu como "mirante".[194][254] Este andar tem uma planta em formato de "T", com o pé do "T" ficando acima da nave norte.[189][255] A planta baixa lembra vagamente uma cruz grega com braços assimétricos.[256] O terceiro andar fica ao lado da chaminé a oeste e visualmente conecta as naves abaixo.[256] Possui três quartos,[35] cada um deles com vista para uma varanda com floreiras e urnas.[24] O quarto principal ocupa a extremidade sul do "T".[256] Ele tem um closet, um banheiro, um camarim com gavetas embutidas e lareira.[24][257] Outro quarto ao noroeste tem vista para a Avenida South Woodlawn e tem um closet e decorações de vidros. O menor dos quartos fica ao nordeste, mas suas janelas estão viradas principalmente para leste. Há pequenas janelas de batente para floreiras em todos os três quartos.[257]
Mobílias

Wright projetou várias das mobílias originais[197] e Niedecken construiu a maioria,[24][258] que eram feitas de carvalho.[3] No vestíbulo estavam objetos como mobílias e tapetes estampados.[240] As mobílias de carvalho do vestíbulo, incluindo uma mesa em balanço, um lenço de mesa com padrão geométrico e cadeiras, tinham a intenção de complementarem o projeto.[259] Os mobílias originais da sala de estar incluíam um sofá com apoios estendidos.[163] A sala de estar tinha um banco com mesas laterais, um armário de fumante, uma pequena mesa de estudo com uma lamparina e cadeiras.[260][261] As cadeiras da sala de jantar tinham encostos altos para dar à mesa uma sensação mais intimista,[251][260] desta forma criando uma "sala dentro de uma sala".[4] A mesa de jantar retangular era expansível[262] com postes de luz nos cantos,[245][260] com a intenção sendo atrair a atenção para o centro e assim desencorajar conversas paralelas.[147] A casa também importou tapetes austríacos.[3][263] Wright projetou uma cômoda, uma casa de casal e cadeiras para o quarto de hóspedes.[253] Ele não projetou as mobílias do terceiro andar, que incluíam armários e gavetas embutidas.[257]
Algumas mobílias contemporâneas projetadas pela Skidmore, Owings & Merril foram adicionadas à casa quando ela foi convertida durante a sede do Instituto Stevenson na década de 1960. O sofá original da casa foi reproduzido na mesma época.[136] A casa nessa altura estava decorada com uma paleta de cor de ameixa, vermelho escuro, marrom e dourado açafrão. Alguns mobiliários estavam estofados em seda, lã ou mohair, enquanto outros estavam cobertos com couro natural.[264]
Algumas das mobílias originais de Wright estão na coleção do Museu Inteligente de Arte da Universidade de Chicago.[4][70] Este museu também é dono de peças desmontadas de mobílias da Casa Robie e peças de outras casas de Wright.[70] O museu emprestou as cadeiras e mesa de jantar para o Fundo Frank Lloyd Wright em 2019.[173] O sofá original, também propriedade do Museu Inteligente, está desde 1982 emprestado ao Museu Metropolitano de Arte em Nova Iorque.[265] Algumas janelas com vidros artísticos foram levadas para a delegacia de polícia da Universidade de Chicago quando a casa estava sendo considerada para demolição.[4] Réplicas das cadeiras de jantar,[266] lamparinas,[267] arandelas[268] e sofá já foram vendidas.[269] Uma lamparina foi vendida em 1988 em um leilão por 704 mil dólares, a mobília projetada por Wright mais cara já vendida.[270]
Administração
A Universidade de Chicago e a proprietária da casa, arrendando-a para Fundo Nacional para Preservação Histórica,[153][158] que opera o museu junto com o Fundo Frank Lloyd Wright.[156] Este realiza visitas guiadas na casa, que ocorrem cinco vezes por semana[170] e normalmente duram entre 45 a sessenta minutos.[271] Também há visitas de áudio pela casa.[272] O terceiro andar é excluído da maioria das visitas, mas faz parte da visita especial "Espaços Particulares".[170][175] A casa faz parte do anual passeio a pé Wright Plus,[273] que inclui visitas a vários edifícios projetados por Wright.[274] A Casa Robie desde 2018 faz parte da Trilha Frank Lloyd Wright, uma coleção de treze edifícios projetados por Wright no estado de Illinois.[275] O fundo tipicamente realiza cursos de treinamento duas vezes por ano para voluntários de visitas guiadas.[276] O fundo treinou como guias vários alunos de escolas primárias pelo decorrer dos anos.[277] Além disso, o fundo também permite que a casa pode ser alugada para eventos externos.[278]
Impacto
Recepção

Residentes locais não gostaram de como a casa se destacava dos arredores quando construída.[160][161] Ela era mais bem vista pela comunidade arquitetônica,[279] porém sua significância histórica só foi reconhecida na década de 1930.[280] O The Christian Science Monitor, quando a primeira demolição foi proposta em 1957, a descreveu como "um dos trabalhos mais importantes de um dos arquitetos mais influentes do mundo", dizendo que sua demolição seria uma "tragédia desnecessária".[281] John Fabian Kienitz da The Wisconsin Magazine of History disse que para muitos estadunidenses a casa era "a melhor obra de arte produzida por qualquer um dos nossos arquitetos em nossa história como nação".[282] O arquiteto suíço Werner M. Moser afirmou que os europeus consideravam a Casa Robie "um monumento de valor histórico".[116] Thomas Fitzpatrick do Chicago Tribune afirmou em 1965 que uma visita à sala de estar da casa era comparável a ver uma pintura de Giotto ou escutar uma sinfonia de Ludwig van Beethoven pela primeira vez.[89]
Barbara Sullivan do Chicago Tribune escreveu que "a força e vitalidade que viraram tantas cabeças em 1909 ainda brilha muito".[49] O autor Donald Hoffmann afirmou que a casa "abraçava tantas tendências opostas"; por exemplo, o sótão contrastava com sua forma e seus exteriores fechados contrastavam com os interiores abertos.[219] Robert Campbell do The Boston Globe disse que a Casa Robie era "provavelmente a melhor que o mestre [Wright] já fez", junto com a Casa da Cascata na Pensilvânia.[145] Elaine Glusac da Condé Nast Traveler escreveu que "a integridade essencial do projeto, por dentro e por fora, está intacta e envolvente".[271] O autor Neil Levine falou que a Casa Robie parecia "flutuante e espaçosa" apesar de sua forma baixa,[11] enquanto Patrick Langston do Ottawa Citizen afirmou que a casa representava a "energia e otimismo" que caracterizou o começou do século XX.[190] Alan Colquhoun disse em 2002 que "o controle estético [da casa] é total e um tanto opressivo" e que até mesmo os móveis foram projetados para complementar o resto das decorações.[283]
Julie Lasky do The Wall Street Journal a descreveu como "um bolo que quer ser um zigurate".[174] Outras fontes disseram que era uma "casa quintessencial da Escola Prairie"[263] e uma das melhores estruturas Prairie.[176][284] Sua baixa altura também já foi comparada com um navio,[159] tendo sido descrita como um exemplo de "arquitetura Dampfer", uma referência a palavra alemã para "navio a vapor".[22][232] Lori Mendoza da The Sunday Oregonian descreveu a casa como o "ápice" dos trabalhos iniciais de Wright.[158]
Influência

A Casa Robie foi uma das primeiras residências nos Estados Unidos construída principalmente com blocos de cimento e concreto derramado.[124] Peter Muller do The Sydney Morning Herald disse que alguns elementos de projeto da casa tornaram-se comuns, incluindo lajes em balanço, pisos de concreto e janelas de canto.[285] As janelas contínuas e telhado protuberante também foram popularizados nacionalmente.[286] Jornais citaram a casa como tendo apresentado outros detalhes arquitetônicos, como banheiros a mais, planteiras autoirrigáveis, garagens anexas, janelas panorâmicas e espaços de dois níveis.[111][147] Alguns dos elementos arquitetônicos tinham sido usados em projetos anteriores de Wright, como a Casa de Warren McArthur[287] e a Casa e Estúdio de Wright.[288] A Casa Robie foi um dos edifícios mais proeminentes projetados por Wright em seu estúdio em Oak Park[141][289] e também uma das últimas estruturas que ele projetou no local.[45] O próprio Wright considerou a casa um "marco da arquitetura moderna".[290]
A Comissão sobre Marcos Históricos de Chicago afirmou: "A interação ousada de planos horizontais em torno da massa da chaminé, e os pegões e janelas estruturalmente expressivos, estabeleceram uma nova forma de projeto doméstico".[291] A revista House & Home disse em 1957 que "A casa apresentou tantos conceitos em planejamento e construção que sua completa influência não poderá ser medida por muitos anos",[292][293] chamando-a de a casa mais consequente construída nos Estados Unidos em um século.[293] Kenneth Hufford do The Christian Science Monitor escreveu em 1962 que a Casa Robie foi a primeira residência de Wright a ter "uma influência efetiva na arquitetura residencial moderna",[294] já Walter Gropius chamou a casa de "um marco na arquitetura independente".[213]
Obras seguintes de Wright, com exceção da Casa da Cascata, não foram projetadas com um ponto de vista diagonal em mente. Mesmo assim, alguns arquitetos criaram projetos para serem vistos de um ângulo específico.[295] Outros elementos arquitetônicos da Casa Robie inspiraram arquitetos na Europa, começando com o neerlandês J. J. P. Oud, que em 1918 publicou o primeiro artigo sobre a casa.[279][295] Ela influenciou o projeto de estruturas europeias como o Pavilhão de Barcelona e a Casa Rietveld Schröder, ambos de Mies.[279] Arquitetos estadunidenses começaram a usar os elementos da Casa Robie na década de 1930.[57] Estruturas específicas influenciadas pela casa incluem uma residência em Franklin Park,[296] a sede da Domino's Pizza em Ann Arbor[297] e uma residência na Avenida Navajo em Chicago.[47] Decorações da casa também já foram replicadas.[298]
A Casa Robie foi listada em 1956 como "uma das sete residências mais notáveis" dos Estados Unidos pela revista Architectural Record.[201][299] Uma pesquisa de 1976 com especialistas em arquitetura colocou a casa como uma das melhores estruturas do país,[300] enquanto uma pesquisa de 1982 com os leitores da revista Architecture: The AIA Journal escolheu a Casa Robie como o terceiro melhor edifício do país.[301] O Instituto Americano de Arquitetos nomeou a casa em 1991 como um dos melhores trabalhos feitos por arquitetos estadunidenses.[197][302] Foi selecionada em 2018 como um dos duzentos melhores lugares de Illinois em celebração aos duzentos anos do estado.[303]
Designações
.jpg)
A Comissão sobre Marcos Históricos Arquitetônicos de Chicago designou em 1957 a Casa Robie como um marco histórico em uma tentativa de salvá-la da demolição.[92][94][115] A casa também foi o primeiro edifício do século XX que o Fundo Nacional para Preservação Histórica tentou preservar.[87] O ramo de Chicago do Instituto Americano de Arquitetos deu aos donos da casa um placa em 1960 que reconhecia o edifício como um marco histórico.[304] A Comissão sobre Marcos Históricos de Chicago substituiu a Comissão sobre Marcos Históricos Arquitetônicos em 1968,[305] com a casa sendo indicada para outra designação de marco em 1971.[306] Um comitê do Conselho Municipal de Chicago, seguindo a recomendação da comissão,[307] aprovou a designação em agosto.[308] A designação da Comissão sobre Marcos Históricos de Chicago aplicava-se apenas ao exterior[309] e impedia alterações não autorizadas.[305]
O Serviço Nacional de Parques inicialmente se recusou a considerar preservar a casa quando ela estava sendo considerada para demolição em 1957, pois ela ainda não tinha cinquenta anos.[280] A casa foi designada como o primeiro Marco Histórico Nacional de Chicago em julho de 1963,[310] com uma placa afirmando essa designação sendo instalada em abril de 1964.[124][311] A casa foi adicionada ao Registro Nacional de Lugares Históricos em 15 de outubro de 1966,[312] mesmo dia que a Lei Nacional de Preservação Histórica entrou em efeito.[313] A Casa Robie é uma propriedade contribuinte para o Distrito Histórico de Hyde Park–Kenwood, designado em 1979,[314] com ela também sendo designada no ano seguinte como um Marco Histórico de Illinois.[315]
O Departamento do Interior indicou em 2015 a Casa Robie e outras nove estruturas projetadas por Wright para a lista de Patrimônio Mundial da UNESCO;[316] os edifícios tinham sido antes indicados em 2008.[317] Oito estruturas foram escolhidas em julho de 2019, incluindo a Casa Robie, como "Arquitetura do Século XX de Frank Lloyd Wright".[318]
Mídia e exibições
A Casa Robie foi detalhada em 1910 no Wasmuth Portfolio de Ernst Wasmuth.[22] O Levantamento de Edifícios Históricos Americanos catalogo os detalhes arquitetônicos e plantas baixas da casa na década de 1960,[319] enquanto Donald Hoffmann escreveu um livro sobre ela em 1984.[320] Além disso, apresentações de um simpósio neste mesmo ano foram publicadas no livro The Nature of Frank Lloyd Wright.[321] Um passeio animado pela casa foi lançado em 1995 em CD-ROM,[149][322] com a casa sendo representada em um selo de 1988 emitido pelo Serviço Postal dos Estados Unidos.[323] A Casa Robie já foi assunto de vários documentários, incluindo um da BBC de 1975,[324] um episódio de 2004 da série Restore America: A Salute to Preservation da HGTV[325] e em 2013 no documentário e livro 10 Buildings that Changed America da PBS.[326]
Miniaturas da Casa Robie foram exibidas em 1933 no Museu de Arte de Cincinnati[327] e em 1938 na Exibição de Arte Americana em Paris.[328] Também já apareceu em várias exibições do Museu de Arte Moderna de Nova Iorque em 1941,[329] 1961[330] e 1994,[331] enquanto uma miniatura da casa foi exibida no mesmo museu em 1964.[332] Mobílias da casa foram exibidas no Museu Inteligente de Arte em 1979[333] e na Galeria Nacional de Arte em 2000,[334] enquanto cadeiras foram exibidas no Museu Cooper Hewitt em 1983[335] e no Museu de Desenho de Boston em 1992.[336] O Ateneu de Chicago organizou em 1992 uma exibição sobre a Casa Robie e outros projetos de Wright na cidade.[337]
A casa também já apareceu em outras obras criativas. Por exemplo, o desenhista gráfico Steven Brower criou uma caixa de pizza no formato da Casa Robie.[338] Edmund V. Gillon Jr. lançou uma miniatura da casa em 1996[339] e uma representação da casa foi incluída em 2002 em um livro pop-up sobre as obras de Wright.[340] A Lego começou a vender um modelo da Casa Robie em 2011.[341] O romance de mistério infantil The Wright 3, escrito por Blue Balliett em 2006, se passa dentro da casa.[342]
Notas
- ↑ Blanche H. Schroer do Serviço Nacional de Parques afirmou que as dimensões são de 18,3 por 61 metros.[3]
- ↑ Robie afirmou em 1958 que gastou catorze mil dólares no terreno.[22][23][24] Entretanto, outras fontes falaram em 13,5 mil dólares.[20][21]
- ↑ Wright tinha se juntado à Phi Delta Theta enquanto estudava na Universidade de Wisconsin–Madison.[80]
- ↑ Um painel foi removido, então algumas fontes também citam que há 174 painéis na casa.[212] O autor Donald Hoffmann dá um valor completamente diferente, 265 painéis.[211]
Referências
- ↑ a b c d e f Sanderson 2001, pp. 41–42.
- ↑ a b c Davis & Vinci 2013, p. 209.
- ↑ a b c d e f g h i j Schroer 1966, p. 2.
- ↑ a b c d e f g h i j k l m Donovan, Deborah (7 de fevereiro de 2003). «Renovation for Robie Restoration continues on Wright's prairie- style masterpiece». Daily Herald. p. 1. ProQuest 312702899
- ↑ a b Lucas 2006, p. 9.
- ↑ a b c d Clark, Brian E. (12 de julho de 2019). «The Frank Lloyd Wright-designed Robie House in Chicago's Hyde Park is now a UNESCO treasure». Milwaukee Journal Sentinel. Consultado em 24 de agosto de 2025
- ↑ a b c d e f g Hoffmann 1984, p. 17.
- ↑ a b c d McCarter 1997, p. 93.
- ↑ Hoffmann 1984, p. 15.
- ↑ Hoffmann 1984, p. 13.
- ↑ a b c d e Levine 1997, p. 53.
- ↑ «Map of Chicago». Chicago. Consultado em 24 de agosto de 2025
- ↑ Kamin, Blair (22 de fevereiro de 2000). «U. Of C. Looks Outside Again for Architect». Chicago Tribune. p. 2C.3. ISSN 1085-6706. ProQuest 419011952
- ↑ Connors 1984, p. 5.
- ↑ a b Hoffmann 1984, p. 5.
- ↑ a b c Gill 1987, p. 193.
- ↑ a b c Architectural Forum 1958, p. 126.
- ↑ a b Connors 1984, p. 7.
- ↑ a b c d e Architectural Forum 1958, p. 127.
- ↑ a b c d Hoffmann 1984, p. 6.
- ↑ a b c d Smith 2008, p. 6.
- ↑ a b c d e f Hoffmann 1984, p. 14.
- ↑ a b c Architectural Forum 1958, p. 206.
- ↑ a b c d e f g h i j k Connors 1984, p. 39.
- ↑ a b Connors 1984, p. 8.
- ↑ a b Hoffmann 1984, p. 8.
- ↑ Architectural Forum 1958, pp. 126–127.
- ↑ a b Lucas 2006, p. 8.
- ↑ Connors 1984, p. 9.
- ↑ Hoffmann 1984, p. 9.
- ↑ Hoffmann 1984, pp. 12–13.
- ↑ a b c Hoffmann 1984, p. 34.
- ↑ a b c d Architectural Forum 1958, p. 210.
- ↑ Daniels, Mary (7 de fevereiro de 1982). «Resurrection of a Frank Lloyd Wright legacy is the work of a team of Oak Park detectives». Chicago Tribune. p. S.A1. ISSN 1085-6706. ProQuest 172590369
- ↑ a b c d e Hoffmann 1984, p. 19.
- ↑ Connors 1984, pp. 40–41.
- ↑ Baer, Susan (24 de janeiro de 1978). «Frank Lloyd Wright's 'little things' in life». Chicago Tribune. pp. 2.1–2.2. ISSN 1085-6706. Consultado em 25 de agosto de 2025 – via Newspapers.com
- ↑ Connors 1984, p. 46.
- ↑ a b c Hoffmann 1984, p. 21.
- ↑ a b c Hoffmann 1984, p. 27.
- ↑ a b Hoffmann 1984, p. 28.
- ↑ a b Hoffmann 1984, p. 29.
- ↑ a b Hoffmann 1984, p. 31.
- ↑ a b Hoffmann 1984, pp. 32–33.
- ↑ a b Connors 1984, pp. 59–60.
- ↑ a b c d e f g h i Smith 2008, p. 7.
- ↑ a b c d e Rodkin, Dennis (23 de junho de 2023). «What's That Building? Chicago Icons: Robie House». WBEZ. Consultado em 26 de agosto de 2025
- ↑ a b c d The Prairie School Review 1967, p. 10.
- ↑ a b c d e f g h Sullivan, Barbara (4 de novembro de 1984). «Wright's Robie House: 75 years, and still shining». Chicago Tribune. p. 308. ISSN 1085-6706. Consultado em 26 de agosto de 2025 – via Newspapers.com
- ↑ a b c d e Hoffmann 1984, p. 89.
- ↑ a b c d Lucas 2006, p. 10.
- ↑ a b c d e f g Pitz, Marylynne (6 de novembro de 2010). «Restoring a Wright». Pittsburgh Post-Gazette. pp. C-1, C-3. Consultado em 26 de agosto de 2025 – via Newspapers.com
- ↑ a b c Gill 1987, p. 195.
- ↑ Robie Jr., Frederick C. (29 de março de 1957). «Voice of the People: the Robies Comment on Robie House». Chicago Daily Tribune. p. 14. ISSN 1085-6706. ProQuest 180089035
- ↑ «Forced to Wall by Honor Debts: Fred C. Robie, Who Assumed Obligations of Excelsior Supply Co., Files Petition». Chicago Daily Tribune. 25 de junho de 2013. p. 15. ISSN 1085-6706. ProQuest 173711781
- ↑ «Director Bankrupt for Company's Debt». The Inter Ocean. 25 de junho de 1913. p. 7. Consultado em 26 de agosto de 2025 – via Newspapers.com
- ↑ a b c d e f g Smith 2008, p. 9.
- ↑ a b c d e Hoffmann 1984, p. 90.
- ↑ «Obituary». The Inter Ocean. 24 de outubro de 1912. p. 2. Consultado em 26 de agosto de 2025 – via Newspapers.com
- ↑ «David Lee Taylor Is Dead». Chicago Tribune. 23 de outubro de 1912. p. 2. ISSN 1085-6706. Consultado em 26 de agosto de 2025 – via Newspapers.com
- ↑ a b «Realty Deals of Week Reviewed». The Inter Ocean. 24 de novembro de 1912. p. 24. Consultado em 26 de agosto de 2025 – via Newspapers.com
- ↑ a b «Chicago Apartment Is Part of $300,000 Deal at Evanston». Chicago Examiner. 26 de novembro de 1912. p. 16. Consultado em 26 de agosto de 2025 – via Newspapers.com
- ↑ a b c Hoffmann 1984, p. 91.
- ↑ «Society and Entertainments». Chicago Tribune. 6 de maio de 1919. p. 21. ISSN 1085-6706. Consultado em 26 de agosto de 2025 – via Newspapers.com
- ↑ «What Society People Are Doing». The Inter Ocean. 7 de fevereiro de 1914. p. 4. Consultado em 26 de agosto de 2025 – via Newspapers.com
- ↑ Hoffmann 1984, pp. 91–92.
- ↑ a b c Hoffmann 1984, p. 92.
- ↑ a b Hoffmann 1984, pp. 92–94.
- ↑ Bargelt, Louise (20 de junho de 1926). «Designed Serve Needs Two Families: All Appearances of Single Residence». Chicago Daily Tribune. p. B7. ISSN 1085-6706. ProQuest 180704589
- ↑ a b c d e Hoffmann 1984, p. 94.
- ↑ a b c d Smith 2008, p. 11.
- ↑ a b Hansen, Harry (12 de outubro de 1941). «First Reader: Plans Came From Everywhere». The Pittsburgh Press. p. 23. Consultado em 26 de agosto de 2025 – via Newspapers.com
- ↑ a b The Prairie School Review 1967, pp. 10–11.
- ↑ «Zone Board OK's Diamond Tool Shop on S. Side». Chicago Tribune. 14 de dezembro de 1952. p. 9. ISSN 1085-6706. Consultado em 26 de agosto de 2025 – via Newspapers.com
- ↑ a b c «Plan Seminary Dormitory for Married Folk». Chicago Daily Tribune. 2 de março de 1957. p. 7. ISSN 1085-6706. Consultado em 26 de agosto de 2025 – via Newspapers.com
- ↑ a b Lister, Walter (19 de março de 1957). «Frank Lloyd Wright Fights To Save '06 House He Built». New York Herald Tribune. p. 12. ISSN 1941-0646. ProQuest 1326293280
- ↑ «Laymen Vow to Promote Church Work». Chicago Tribune. 28 de maio de 1956. p. 14. ISSN 1085-6706. Consultado em 26 de agosto de 2025 – via Newspapers.com
- ↑ a b Smith 2008, p. 12.
- ↑ a b c Smith 2008, p. 13.
- ↑ a b c Fuller, Ernest (12 de março de 1957). «Fraternity Acts to Save Home Wright Designed». Chicago Daily Tribune. p. 26. ISSN 1085-6706. Consultado em 27 de agosto de 2025 – via Newspapers.com
- ↑ a b c d Smith 2008, p. 15.
- ↑ a b c «Wright Terms Doomed Robie House Sound, Hits Plan to Raze Structure». Chicago Daily Tribune. 19 de março de 1957. p. B10. ISSN 1085-6706. ProQuest 180080335 – via Newspapers.com
- ↑ a b c «Frank Lloyd Wright Fights to Save His 1906 Creation». The Grand Rapids Press. 13 de março de 1957. p. 5. Consultado em 27 de agosto de 2025 – via Newspapers.com
- ↑ Smith 2008, pp. 12–13.
- ↑ «Save the Robie House, German Artists Urge». Chicago Daily Tribune. 28 de março de 1957. p. 3. ISSN 1085-6706. Consultado em 27 de agosto de 2025 – via Newspapers.com
- ↑ «Realty Notes». Chicago Tribune. 15 de junho de 1957. p. 39. ISSN 1085-6706. Consultado em 27 de agosto de 2025 – via Newspapers.com
- ↑ a b c d Smith 2008, p. 14.
- ↑ Gill 1987, p. 494.
- ↑ a b c Fitzpatrick, Thomas (21 de março de 1965). «Doom Haunts Wright's Robie House». Chicago Tribune. p. B1. ISSN 1085-6706. ProQuest 179834555
- ↑ a b c d Pippert, Wesley G. (8 de maio de 1965). «Chances Grow for Saving Wright's Robie House, Landmark in Chicago». The Wichita Beacon. p. 2. Consultado em 27 de agosto de 2025 – via Newspapers.com
- ↑ a b Horne, Louther S. (15 de abril de 1957). «House by Wright Appears Doomed». The New York Times. ISSN 0362-4331. Consultado em 27 de agosto de 2025. (pede subscrição (ajuda))
- ↑ a b c «Robie House Recognized as Landmark». Wisconsin State Journal. 22 de abril de 1957. p. 8. Consultado em 27 de agosto de 2025 – via Newspapers.com
- ↑ a b c «Prototype of American Homes to Be Saved From Demolition». The Columbia Record. 2 de janeiro de 1958. p. 26. Consultado em 27 de agosto de 2025 – via Newspapers.com
- ↑ a b «Robie House Aided». The New York Times. 22 de abril de 1957. ISSN 0362-4331. Consultado em 27 de agosto de 2025. (pede subscrição (ajuda))
- ↑ «Three Named to Help Save Robie House». Chicago Daily Tribune. 3 de julho de 1957. p. 22. ISSN 1085-6706. Consultado em 27 de agosto de 2025 – via Newspapers.com
- ↑ a b c «New York Builder Offers $125,000 for Robie House». Chicago Daily Tribune. 21 de dezembro de 1957. p. 9. ISSN 1085-6706. ProQuest 180275528
- ↑ a b c «Wright Building Saved; Zeckendorf Will Pay $125,000 for Doomed Robie House». The New York Times. 21 de dezembro de 1957. ISSN 0362-4331. Consultado em 27 de agosto de 2025. (pede subscrição (ajuda))
- ↑ «Famed Robie House's Fate Up to City Council». Chicago Tribune. 18 de julho de 1958. p. 5. ISSN 1085-6706. Consultado em 27 de agosto de 2025 – via Newspapers.com
- ↑ «Urge Rezoning of Land Near Robie House». Chicago Daily Tribune. 19 de agosto de 1959. p. 2. ISSN 1085-6706. Consultado em 27 de agosto de 2025 – via Newspapers.com
- ↑ Saarinen, Aline B. (19 de abril de 1959). «Preserving Wright Architecture». The New York Times. ISSN 0362-4331. Consultado em 27 de agosto de 2025. (pede subscrição (ajuda))
- ↑ a b Smith 2008, p. 16.
- ↑ a b «Robie House Restoration to Commence in Month». Chicago Tribune. 18 de abril de 1965. p. SA2. ISSN 1085-6706. Consultado em 28 de agosto de 2025 – via Newspapers.com
- ↑ Murtagh, William J. (abril de 1960). «Something Worth Saving: the National Trust and Our Heritage». Americans. 12 (4). p. 8. ProQuest 1792717068
- ↑ «Propose Robie House Use as Mayor's Home». Chicago Tribune. 7 de fevereiro de 1959. p. 11. ISSN 1085-6706. Consultado em 28 de agosto de 2025 – via Newspapers.com
- ↑ Truit, Richard (21 de setembro de 1958). «Woman Urges Revival of Hyde Pk. Art Center: Former Headquarters of Art Colony». Chicago Daily Tribune. p. S1. ISSN 1085-6706. ProQuest 182127102
- ↑ Philbrick, Richard (4 de abril de 1962). «U. Of Chicago May Take Over Robie House». Chicago Daily Tribune. p. 6. ISSN 1085-6706. Consultado em 28 de agosto de 2025 – via Newspapers.com
- ↑ a b Philbrick, Richard (9 de junho de 1962). «U. Of C. Given F. L. Wright's Robie House: Plan to Restore Famed Building». Chicago Daily Tribune. p. C9. ISSN 1085-6706. ProQuest 183190983. Consultado em 28 de agosto de 2025 – via Newspapers.com
- ↑ a b «Drive Begun to Restore Robie House». Chicago Daily Tribune. 21 de agosto de 1962. p. A6. ISSN 1085-6706. ProQuest 182979504. Consultado em 28 de agosto de 2025 – via Newspapers.com
- ↑ «Landmark Saved». The Decatur Daily Review. 21 de agosto de 1962. p. 4. Consultado em 28 de agosto de 2025 – via Newspapers.com
- ↑ a b c d e f Huff, Mary (9 de setembro de 1962). «Robie House Restoration Is Campaign Goal». Chicago Tribune. pp. 8.1, 8.10. ISSN 1085-6706. Consultado em 28 de agosto de 2025 – via Newspapers.com
- ↑ a b c d e Sembower, John F. (21 de agosto de 1964). «Quarter Million Dollars Needed to Repair Structure That Cost Only $40,000 to Build». Republican and Herald. p. 9. Consultado em 28 de agosto de 2025 – via Newspapers.com
- ↑ a b «International Group Seeks Funds to Restore Robie House in Chicago». The New York Times. 2 de fevereiro de 1963. ISSN 0362-4331. Consultado em 28 de agosto de 2025. (pede subscrição (ajuda))
- ↑ a b c d e Nelson, Robert (19 de novembro de 1963). «Posterity Gets Robie House: Chicago Gem». The Christian Science Monitor. p. 4. ISSN 0882-7729. ProQuest 510486661
- ↑ a b Philbrick, Richard (5 de fevereiro de 1963). «U. C. Deeded Robie House; Drive Begins». Chicago Daily Tribune. p. 23. ISSN 1085-6706. ProQuest 182577323. Consultado em 28 de agosto de 2025 – via Newspapers.com
- ↑ a b c The Prairie School Review 1967, p. 12.
- ↑ a b Philbrick, Richard (3 de fevereiro de 1963). «Seek $250,000 to Restore Robie House: U. of C. to Accept Zeckendorf's Gift of Deed». Chicago Tribune. p. 12. ISSN 1085-6706. ProQuest 182613024 – via Newspapers.com
- ↑ a b The Prairie School Review 1967, p. 14.
- ↑ a b «The House That Wright Built». Democrat and Chronicle. 20 de junho de 1965. p. 71. Consultado em 28 de agosto de 2025 – via Newspapers.com
- ↑ «Student Tours of Robie House Are Started». Chicago Tribune. 8 de abril de 1963. p. 19. ISSN 1085-6706. ProQuest 182674875
- ↑ «$31,000 Gifts in Robie House Project Bared"». Chicago Tribune. 15 de agosto de 1963. p. D14. ISSN 1085-6706. ProQuest 182790787
- ↑ «Fund for the Robie House Of Wright Is Given $10,000». The New York Times. 6 de junho de 1964. ISSN 0362-4331. Consultado em 28 de agosto de 2025. (pede subscrição (ajuda))
- ↑ «Robie House to Be Sealed Up for Winter». Chicago Tribune. 17 de outubro de 1963. p. C15. ISSN 1085-6706. ProQuest 179312883
- ↑ a b Buck, Thomas (5 de janeiro de 1964). «Robie House Restoration Fund Is Short $210,000». Chicago Tribune. p. B10. ISSN 1085-6706. ProQuest 179358135
- ↑ a b c «Dedicated as U.S. Landmark». The Belleville News-Democrat. 2 de abril de 1964. p. 19. Consultado em 28 de agosto de 2025 – via Newspapers.com
- ↑ a b Starr, Frank (14 de maio de 1964). «Robie House Tours Teach History, Art». Chicago Tribune. p. S1. ISSN 1085-6706. ProQuest 179468611. Consultado em 28 de agosto de 2025 – via Newspapers.com
- ↑ a b c Hoffmann, Donald L. (22 de agosto de 1963). «Seek to Save Architectural Masterpiece». The Kansas City Times. p. 12. Consultado em 28 de agosto de 2025 – via Newspapers.com
- ↑ a b Schroer 1966, p. 5.
- ↑ a b «Robie House Restoration Underway» (PDF). Progressive Architecture. 46 (10). Outubro de 1965. pp. 55, 57
- ↑ a b «Wright's Robie House to Be Open Sundays». Chicago Tribune. 23 de maio de 1965. p. 18. ISSN 1085-6706. Consultado em 30 de agosto de 2025 – via Newspapers.com
- ↑ a b «Robie House Job Waits for Money». Chicago Tribune. 5 de junho de 1966. p. 4. ISSN 1085-6706. ProQuest 178999465. Consultado em 30 de agosto de 2025 – via Newspapers.com
- ↑ a b Nolte, Robert (8 de julho de 1965). «Robie House Repairs Near Mid-way Point». Chicago Tribune. p. 3. ISSN 1085-6706. Consultado em 30 de agosto de 2025 – via Newspapers.com
- ↑ «Federal Program To Save Historic Chicago: Famous Houses To Be Restored, Preserved». Chicago Daily Defender. 24 de agosto de 1966. p. 4. ProQuest 494237948
- ↑ «Name World Affairs Site for Stevenson: Will Be Located in Robie House». Chicago Tribune. 15 de julho de 1966. p. C13. ISSN 1085-6706. ProQuest 178999484 – via Newspapers.com
- ↑ a b The Prairie School Review 1967, p. 15.
- ↑ The Prairie School Review 1967, pp. 15–16.
- ↑ a b The Prairie School Review 1967, pp. 16–17.
- ↑ Bruckner, D. J. R. (6 de fevereiro de 1967). «Stevenson Institute to Open in Chicago Today». Los Angeles Times. p. 27. ISSN 0458-3035. ProQuest 155551229
- ↑ «Party in a Landmark». Chicago Tribune. 10 de janeiro de 1968. p. 34. ISSN 1085-6706. Consultado em 30 de agosto de 2025 – via Newspapers.com
- ↑ Willie, Lois (22 de janeiro de 1969). «World Institute's Activists Have 'Dream to Realize'». The Reporter Dispatch. p. 45. Consultado em 30 de agosto de 2025 – via Newspapers.com
- ↑ Gill, Donna (8 de maio de 1970). «80 Students Clean Up Robie House Damage». Chicago Tribune. p. 8. ISSN 1085-6706. Consultado em 30 de agosto de 2025 – via Newspapers.com
- ↑ a b «Where Are They Now?: the House on 58th Street». Newsweek. 77 (16). 19 de abril de 1971. p. 20. ProQuest 1882530705
- ↑ King, Seth S. (19 de outubro de 1975). «University of Chicago Absorbs Stevenson Institute of Politics». The New York Times. ISSN 0362-4331. Consultado em 28 de agosto de 2025. (pede subscrição (ajuda))
- ↑ a b Mermigas, Diane (17 de setembro de 1977). «Stately Mansions». The Daily Herald. pp. 4, 5, 6. Consultado em 30 de agosto de 2025 – via Newspapers.com
- ↑ a b c Lucas 2006, p. 11.
- ↑ a b c Campbell, Robert (5 de abril de 1987). «Crumbling National Treasures It's Time to Restore Frank Lloyd Wright's Houses». Boston Globe. p. 67. ProQuest 294429166
- ↑ Sommers, Carl (6 de outubro de 1991). «Q and A». The New York Times. ISSN 0362-4331. Consultado em 28 de agosto de 2025. (pede subscrição (ajuda))
- ↑ a b c d Goldfarb, Jeffrey (22 de agosto de 1993). «Robie House was done just Wright». The Arizona Republic. pp. T1, T7. Consultado em 30 de agosto de 2025 – via Newspapers.com
- ↑ a b Fowler, Brenda (16 de abril de 1995). «In Chicago, a Tour of Parks and Boulevards». The New York Times. ISSN 0362-4331. Consultado em 28 de agosto de 2025. (pede subscrição (ajuda))
- ↑ a b Coates, James (26 de maio de 1995). «A new Wright: The plan is in the CD-ROM». Chicago Tribune. pp. 7.66, 7.71. ISSN 1085-6706. Consultado em 30 de agosto de 2025 – via Newspapers.com
- ↑ a b c Ryan, Nancy (22 de janeiro de 1995). «Wright's wonder: Robie House to be refurbished, opened as a museum». Chicago Tribune. pp. 2.1, 2.8. ISSN 1085-6706. Consultado em 31 de agosto de 2025 – via Newspapers.com
- ↑ «Robie House Museum» (PDF). Progressive Architecture. 76 (6). Junho de 1995. p. 49. ProQuest 197320625. Consultado em 30 de agosto de 2025
- ↑ «Wright House Goes on Trust's Roster». Chicago Tribune. 22 de outubro de 1996. p. 23. ISSN 1085-6706. Consultado em 31 de agosto de 2025 – via Newspapers.com
- ↑ a b Mack, Linda (23 de fevereiro de 1997). «Design forum is lively marketplace of ideas». Star Tribune. p. 04.F. ProQuest 426798602
- ↑ a b c d «Frank Lloyd Wright Home and Studio Foundation will restore Robie House». The Taylorville Daily Breeze Courier. 27 de junho de 1997. p. 18. Consultado em 31 de agosto de 2025 – via Newspapers.com
- ↑ Kamin, Blair (6 de junho de 1997). «Chicagoland by design: A critical look at the area's finest architecture tours». Chicago Tribune. pp. 7.43–7.44. ISSN 1085-6706. Consultado em 31 de agosto de 2025 – via Newspapers.com
- ↑ a b Cramer, Ned (janeiro de 1997). «Wright and Meis go public». Architecture: The AIA Journal. 86 (1). p. 29. ProQuest 227795387
- ↑ a b Connors, Tom (outubro de 2000). «Preserving Wright's and Richardson's Chicago-area icons». Architectural Record. 188 (10). p. 46. ProQuest 222112486
- ↑ a b c d Mendoza, Lori (21 de janeiro de 2001). «Righting a Wright house». The Sunday Oregonian. pp. L1, L8. Consultado em 31 de agosto de 2025 – via Newspapers.com
- ↑ a b Kamin, Blair (14 de fevereiro de 1999). «Crumbling Icons Some of Frank Lloyd Wright's Greatest Buildings Are Falling Apart». Chicago Tribune. p. 1. ISSN 1085-6706. ProQuest 418855393
- ↑ a b c d Anderson, Jon (28 de novembro de 2002). «Robie's rescue a work in progress». Chicago Tribune. pp. 2.1, 2.14. ISSN 1085-6706. Consultado em 31 de agosto de 2025 – via Newspapers.com
- ↑ a b Noland, Eric (8 de junho de 2003). «Frank Lloyd Wright 'eyesore' now treasured by Chicagoans». Oakland Tribune. p. 60. Consultado em 31 de agosto de 2025 – via Newspapers.com
- ↑ a b c Lucas 2006, p. 13.
- ↑ a b Dunlap, David W. (12 de agosto de 1999). «Work Is Set to Begin On the Robie House». The New York Times. ISSN 0362-4331. Consultado em 31 de agosto de 2025. (pede subscrição (ajuda))
- ↑ «Treasured sites get a real lift». Chicago Tribune. pp. 2.1–2.2. ISSN 1085-6706. Consultado em 31 de agosto de 2025 – via Newspapers.com
- ↑ Richards, Kristen (julho de 1997). «"Looking for Mr. Wright?». Interiors. 156 (7). p. 20. ProQuest 221527290
- ↑ a b c LaTrace, A. J. (27 de abril de 2018). «Inside the Renovation of Frank Lloyd Wright's Robie House». Chicago Magazine. Consultado em 31 de agosto de 2025. Arquivado do original em 29 de junho de 2018
- ↑ a b c Keegan, Edward (2 de agosto de 2019). «Frederick C. Robie House Restoration». Architect. Consultado em 31 de agosto de 2025
- ↑ a b Lucas 2006, pp. 13–14.
- ↑ a b c Spiselman, Anne (7 de abril de 2009). «A Masterpiece of Restoration». Tampa Bay Times. Consultado em 31 de agosto de 2025
- ↑ a b c d Reid, Kerry (30 de abril de 2014). «Frank Lloyd Wright homes do-it-yourself tour». Chicago Tribune. ISSN 1085-6706. Consultado em 31 de agosto de 2025
- ↑ a b «Lack of Funding Stops Historic Restoration of Frank Lloyd Wright's Robie House». Hyde Park Citizen. 24 de julho de 2003. p. 1. ProQuest 367507204
- ↑ «Brick purchases to strengthen Wright's Robie House». Northwest Herald. 16 de janeiro de 2003. p. 29. Consultado em 31 de agosto de 2025 – via Newspapers.com
- ↑ a b c d e Garcia, Evan (1 de abril de 2019). «Frank Lloyd Wright's Robie House Reopens After Massive Renovation». WTTW. Consultado em 31 de agosto de 2025
- ↑ a b c d e Lasky, Julie (14 de janeiro de 2016). «Pilgrimage; Frank Lloyd Wright's Robie House: Where Family Life Met Tragedy; A displaced Chicagoan visits Frank Lloyd Wright's Robie House in her town—and finds a family abode way ahead of its time». The Wall Street Journal. ISSN 0099-9660. ProQuest 1756636016
- ↑ a b «Trust expands programming at Wright's Robie House». Lincoln Journal Star. 5 de julho de 2009. p. 28. Consultado em 31 de agosto de 2025 – via Newspapers.com
- ↑ a b Kamin, Blair (4 de outubro de 2014). «Bach and Robie: Tale of two Wright homes has different angles, outcomes». GoErie. Consultado em 1 de setembro de 2025
- ↑ Meier, Allison (19 de setembro de 2014). «Getty Foundation Announces New Grants to Conserve Modern Architecture». Hyperallergic. Consultado em 1 de setembro de 2025
- ↑ a b Kamin, Blair (21 de setembro de 2014). «Different stories for 2 Wright homes». Chicago Tribune. p. 1.9. ISSN 1085-6706. Consultado em 31 de agosto de 2025 – via Newspapers.com
- ↑ «Conserving Twentieth Century Architecture». Concrete International. Abril de 2015. pp. 37–41. ProQuest 1671039845
- ↑ «South Side Museums Form "Museum Campus South"». CBS News. 24 de julho de 2014. Consultado em 1 de setembro de 2025
- ↑ a b Kamin, Blair (25 de março de 2019). «The Robie House, a Frank Lloyd Wright masterpiece, is again a full-fledged architectural symphony (and open for tours) after a meticulous restoration». Chicago Tribune. ISSN 1085-6706. Consultado em 1 de setembro de 2025
- ↑ a b Chan, Justin (29 de março de 2019). «Frank Lloyd Wright's Robie House Reopens in Chicago». Architectural Record. Consultado em 1 de setembro de 2025
- ↑ Rodkin, Dennis (1 de fevereiro de 2023). «Knockoff of Frank Lloyd Wright's Robie House quickly grabs buyers' attention». Crain's Chicago Business. Consultado em 1 de setembro de 2025. (pede subscrição (ajuda))
- ↑ a b Schering, Steve (16 de junho de 2020). «Tours resume at Frank Lloyd Wright Home and Studio, Robie House». Chicago Tribune. ISSN 1085-6706. Consultado em 1 de setembro de 2025
- ↑ a b Malone, David (8 de junho de 2020). «Two Frank Lloyd Wright sites set to reopen for tours with enhanced health and safety protocols». Building Design & Construction. ProQuest 2410751475
- ↑ Dorman, John L. (18 de novembro de 2015). «Tracing Frank Lloyd Wright in Oak Park, Illinois». The New York Times. ISSN 0362-4331. Consultado em 5 de setembro de 2025. (pede subscrição (ajuda))
- ↑ Levine 1997, p. 52.
- ↑ a b Davies, Rachel (15 de agosto de 2024). «Prairie-Style Homes: Everything You Need to Know About Frank Lloyd Wright's First». Architectural Digest. Consultado em 5 de setembro de 2025
- ↑ a b c d Connors 1984, p. 19.
- ↑ a b c d Langston, Patrick (20 de setembro de 2010). «The Wright stuff; As the iconic Robie House in Chicago turns 100, Patrick Langston follows architect Frank Lloyd Wright's enormous influence all the way to the streets of Ottawa». Ottawa Citizen. p. I.1. ProQuest 241325228
- ↑ Phillips, Richard (14 de maio de 1982). «The story of Riverside is a tale of two men and a city». Chicago Tribune. pp. 3.1–3.2. ISSN 1085-6706. Consultado em 31 de agosto de 2025 – via Newspapers.com
- ↑ Apple Jr., R. W. (28 de agosto de 1998). «Where a Sense of Place Is Still Cast in Stone». The New York Times. ISSN 0362-4331. Consultado em 5 de setembro de 2025. (pede subscrição (ajuda))
- ↑ Connors 1984, p. 52.
- ↑ a b c d Levine 1997, p. 54.
- ↑ McCarter 1997, p. 92.
- ↑ a b McCarter 1997, p. 94.
- ↑ a b c d e Gibson, Eleanor (5 de junho de 2017). «Frank Lloyd Wright's Robie House was his most "consummate expression" of Prairie style». Dazeen. Consultado em 5 de setembro de 2025
- ↑ Hoffmann 1984, pp. 17, 19.
- ↑ Hoffmann 1984, p. 40.
- ↑ Connors 1984, p. 56.
- ↑ a b c d e Murphy, Jean (13 de maio de 2018). «Restoring the Robie Major renovation awaits Frank Lloyd Wright». Daily Herald. ProQuest 2038281787
- ↑ «'Natural Houses' of Frank Lloyd Wright». The New York Times. 17 de novembro de 1963. ISSN 0362-4331. Consultado em 5 de setembro de 2025. (pede subscrição (ajuda))
- ↑ a b c d e Connors 1984, p. 28.
- ↑ McCarter 1997, pp. 93–94.
- ↑ a b c d Hoffmann 1984, p. 42.
- ↑ a b c Connors 1984, p. 25.
- ↑ a b Connors 1984, p. 27.
- ↑ Connors 1984, p. 57.
- ↑ «Hyde Park's Ageless Homes Symbolize Wright's Foresight». Chicago Tribune. 6 de fevereiro de 1966. p. Q3. ISSN 1085-6706. ProQuest 178916412
- ↑ Davis & Vinci 2013, pp. 209–210.
- ↑ a b c d e Hoffmann 1984, p. 53.
- ↑ a b c Hammond, Margo (25 de agosto de 2002). «Chicago, your town for books». Tampa Bay Times. pp. 1E, 7E. Consultado em 6 de setembro de 2025 – via Newspapers.com
- ↑ a b c d e Yates, Ulys H. (2 de março de 1963). «Robie House—Frank Lloyd Wright's Masterpiece». Honolulu Star-Bulletin. p. 13. Consultado em 6 de setembro de 2025 – via Newspapers.com
- ↑ a b c Hoffmann 1984, p. 44.
- ↑ a b c Levine 1997, p. 55.
- ↑ a b c Lucas 2006, p. 7.
- ↑ a b Connors 1984, p. 30.
- ↑ a b c Hoffmann 1984, p. 57.
- ↑ a b Hoffmann 1984, p. 35.
- ↑ a b Connors 1984, p. 18.
- ↑ Sawyers, June (16 de agosto de 1991). «The Wright Oak Park legacy». Chicago Tribune. p. 3. ISSN 1085-6706. ProQuest 283112441
- ↑ Heathcote, Edwin (24 de fevereiro de 2017). «How the suburban garage has driven creativity and invention». Financial Times. ProQuest 1881018191
- ↑ Connors 1984, p. 24.
- ↑ Hoffmann 1984, p. 38.
- ↑ Hoffmann 1984, pp. 67, 70.
- ↑ a b Connors 1984, p. 26.
- ↑ Poore, Patricia (1988). «Tile Roofs». The Old House Journal 1987 Yearbook. The Old-House Journal Corporation. p. 226
- ↑ a b c Connors 1984, p. 54.
- ↑ Gellner, Arrol (3 de julho de 1999). «Vary room volume for home comfort, interest». Chicago Tribune. p. 59. ISSN 1085-6706. Consultado em 9 de setembro de 2025 – via Newspapers.com
- ↑ a b Connors 1984, p. 10.
- ↑ a b c Levine 1997, p. 56.
- ↑ a b c Gill 1987, p. 194.
- ↑ Fishman, Joel (28 de março de 1982). «Chicago's designs top U.S.». The Standard-Star. pp. G1–G2. Consultado em 9 de setembro de 2025 – via Newspapers.com
- ↑ Robledo, S. Jhoanna (15 de dezembro de 2014). «How to Install Air-Conditioning in Your Frank Lloyd Wright». New York. ProQuest 1636825048
- ↑ The Prairie School Review 1967, p. 17.
- ↑ a b Hoffmann 1984, p. 49.
- ↑ «On the trail of Frank Lloyd Wright in Illinois and Wisconsin». The Washington Post. 5 de setembro de 2019. Consultado em 9 de setembro de 2025. (pede subscrição (ajuda))
- ↑ a b c d e f Connors 1984, p. 36.
- ↑ a b c McCarter 1997, p. 98.
- ↑ a b c d e Hoffmann 1984, p. 47.
- ↑ Hoffmann 1984, pp. 49–51.
- ↑ a b c d e f g h Hoffmann 1984, p. 22.
- ↑ a b Hoffmann 1984, pp. 53–55.
- ↑ a b c d e Hoffmann 1984, p. 61.
- ↑ a b c McCarter 1997, p. 101.
- ↑ a b c d e f g McCarter 1997, p. 99.
- ↑ a b Hoffmann 1984, p. 70.
- ↑ McCarter 1997, pp. 99–101.
- ↑ Hoffmann 1984, p. 64.
- ↑ a b Connors 1984, pp. 36–37.
- ↑ a b Hoffmann 1984, pp. 75–76.
- ↑ a b Hoffmann 1984, pp. 81–82.
- ↑ a b Hoffmann 1984, p. 81.
- ↑ a b c Hoffmann 1984, p. 82.
- ↑ Hoffmann 1984, p. 23.
- ↑ a b c Hoffmann 1984, p. 86.
- ↑ a b c Hoffmann 1984, p. 87.
- ↑ Hoffmann 1984, p. 32.
- ↑ Hoffmann 1984, p. 51.
- ↑ a b c Connors 1984, p. 37.
- ↑ Hoffmann 1984, p. 71.
- ↑ Hoffmann 1984, pp. 73–75.
- ↑ a b Steinberg, Janet (2 de junho de 1991). «Chicago houses Wright's artistry in architecture». The Cincinnati Enquirer. pp. G5–G6. Consultado em 13 de setembro de 2025 – via Newspapers.com
- ↑ The Prairie School Review 1967, p. 18.
- ↑ Daniels, Mary (6 de março de 1982). «The Met Finds a Room for a Real Wright Masterpiece». Chicago Tribune. pp. 13.1, 13,4. ISSN 1085-6706. Consultado em 13 de setembro de 2025 – via Newspapers.com
- ↑ Winship, Frederick M. (9 de outubro de 1986). «Frank Lloyd Wright furniture designs being reproduced». Evansville Press. p. 8. Consultado em 13 de setembro de 2025 – via Newspapers.com
- ↑ «Japanese Reproduce Wright Lamp Designs». The Orlando Sentinel. 13 de agosto de 1994. p. 120. Consultado em 13 de setembro de 2025 – via Newspapers.com
- ↑ Ross, Nancy L. (5 de dezembro de 1996). «Four Score and Seven Catalogues to Go...». The Washington Post. p. T.17. ISSN 0190-8286. ProQuest 408288777
- ↑ Klages, Karen E. (4 de setembro de 1994). «Finding Mr. Wright the Search is Over». Chicago Tribune. p. 1. ISSN 1085-6706. ProQuest 283944292
- ↑ Venant, Elizabeth (4 de dezembro de 1988). «The Wright Time for Household Objects». Los Angeles Times. Consultado em 13 de setembro de 2025. (pede subscrição (ajuda))
- ↑ a b Glusac, Elaine (3 de março de 2021). «Robie House». Condé Nast Traveler. Consultado em 14 de setembro de 2025
- ↑ Chu, Jeff (15 de outubro de 2011). «Take Monday Off Chicago». The Wall Street Journal. p. D1. ISSN 0099-9660. ProQuest 2729700003
- ↑ Izzo, Christina (30 de abril de 2024). «Wright Plus Architectural Housewalk». Time Out. Consultado em 13 de setembro de 2025
- ↑ Zak, Victor (18 de março de 2001). «Something so right in Oak Park». The Central New Jersey Home News. pp. F1, F5. Consultado em 14 de setembro de 2025 – via Newspapers.com
- ↑ Malone, David (8 de maio de 2018). «Illinois Office of Tourism unveils new Frank Lloyd Wright Trail». Building Design+Construction. Consultado em 14 de setembro de 2025
- ↑ Mullen, Caitlin (13 de setembro de 2016). «Training for Frank Lloyd Wright Home guides to start soon». Chicago Tribune. ISSN 1085-6706. Consultado em 14 de setembro de 2025
- ↑ Brodsky, Karyn (7 de julho de 2002). «Junior guides lead tours of Wright-designed homes». Chicago Tribune. p. 6. ISSN 1085-6706. ProQuest 419610911
- ↑ Blackwell, Elizabeth (16 de novembro de 2015). «Entertaining at home-- only better». Crain's Chicago Business. 38 (46). p. 33. ProQuest 1734375884
- ↑ a b c Smith 2008, p. 8.
- ↑ a b Sprinkle 2007, p. 89.
- ↑ «Saving the Robie House». The Christian Science Monitor. 26 de abril de 1957. p. 20. ISSN 0882-7729. ProQuest 509575229
- ↑ Kienitz, John Fabian (setembro de 1945). «Fifty-Two Years of Frank Lloyd Wright's Progressivism». The Wisconsin Magazine of History. 29 (1). p. 64
- ↑ Colquhoun 2002, p. 55.
- ↑ Huxtable, Ada Louise (15 de maio de 1972). «Metropolitan to Set Up Wright interior». The New York Times. ISSN 0362-4331. Consultado em 15 de setembro de 2025. (pede subscrição (ajuda))
- ↑ Muller, Peter (8 de junho de 1954). «Modern Architecture Needs No Defending». The Sydney Morning Herald. p. 11. Consultado em 16 de setembro de 2025 – via Newspapers.com
- ↑ «Houses Fine Example of Nation's Progress». Buffalo Courier Express. 11 de maio de 1962. p. 4. Consultado em 16 de setembro de 2025 – via Newspapers.com
- ↑ Starr, Frank (12 de março de 1964). «Wright Homes Cherished». Chicago Tribune. pp. 2A1, 2A6. ISSN 1085-6706. Consultado em 16 de setembro de 2025 – via Newspapers.com
- ↑ «Oak Park Homes to Be Shown in Walk». Chicago Tribune. 21 de abril de 1968. p. 116. ISSN 1085-6706. Consultado em 16 de setembro de 2025 – via Newspapers.com
- ↑ Seibert, Barney (19 de agosto de 1969). «Oak Park Honors Architect Wright». Anaheim Bulletin. p. 12. Consultado em 16 de setembro de 2025 – via Newspapers.com
- ↑ «Frank Lloyd Wright's Modern Vision: Frederick C. Robie House Conservation Management Plan» (PDF). Fundo Frank Lloyd Wright. Maio de 2019. Consultado em 16 de setembro de 2025
- ↑ «1-7. Fireplace elevations - Frederick C. Robie House, 5757 Woodlawn Avenue, Chicago, Cook County, IL Drawings from Survey HABS IL-1005». Biblioteca do Congresso dos Estados Unidos. Consultado em 16 de setembro de 2025
- ↑ «One Hundred Years of the American House». House and Home. Maio de 1957. pp. 110, 116
- ↑ a b «Landmark Defended». The York Dispatch. 13 de maio de 1957. p. 5. Consultado em 16 de setembro de 2025 – via Newspapers.com
- ↑ Hufford, Kenneth (7 de maio de 1962). «U.S. Drive Builds to Save Historic Landmarks: National Trust Encourages Public Support». The Christian Science Monitor. p. 3. ISSN 0882-7729. ProQuest 510351443
- ↑ a b Connors 1984, pp. 60–61.
- ↑ Greene, Joan (26 de janeiro de 1997). «Wright-inspired house offers lots of openness». News Record. p. 27. Consultado em 16 de setembro de 2025 – via Newspapers.com
- ↑ Frank, Stephen (4 de fevereiro de 1998). «Workspaces: Pizza Man». The Wall Street Journal. p. B8. ISSN 0099-9660. ProQuest 398751882
- ↑ Barbieri, Susan M. (agosto–setembro de 2000). «Prairie passion». Minnesota Monthly. 8 (4). p. 32. ProQuest 204577190
- ↑ Twombly 1991, p. 384.
- ↑ McFeatters, Ann (23 de julho de 1976). «Architects, critics favor buildings at U of Virginia». The Albuquerque Tribune. p. 11. Consultado em 16 de setembro de 2025 – via Newspapers.com
- ↑ Gapp, Paul (23 de maio de 1982). «Architecture: Falling Water Rises to the Top of the AIA's 'Best' List». Chicago Tribune. p. G16. ISSN 1085-6706. ProQuest 172714490
- ↑ «For Whom the Polls Toll». Instituto Americano de Arquitetos. Consultado em 16 de setembro de 2025. Arquivado do original em 17 de dezembro de 2013
- ↑ Waldinger, Mike (30 de janeiro de 2018). «For the bicentennial, recognizing 200 great places». Springfield Business Journal. Consultado em 16 de setembro de 2025
- ↑ «38 Structures to Be Honored as Landmarks: Plaques to Be Given Owners at Fete». Chicago Daily Tribune. 7 de fevereiro de 1960. p. 21. ISSN 1085-6706. ProQuest 182457224
- ↑ a b Krizmis, Patricia (2 de agosto de 1970). «Our Architectural Landmarks: Will They Last?». Chicago Tribune. p. A10. ISSN 1085-6706. ProQuest 169888361
- ↑ Houston, Jack (28 de janeiro de 1971). «Robie House Proposed as Chicago Landmark». Chicago Tribune. p. 11. ISSN 1085-6706. Consultado em 18 de setembro de 2025 – via Newspapers.com
- ↑ «Landmark Hearing Scheduled». Chicago Tribune. 13 de maio de 1971. p. 148. ISSN 1085-6706. Consultado em 18 de setembro de 2025 – via Newspapers.com
- ↑ «Unit Visits Alta Vista, Plans to Seek Landmark Status for It». Chicago Tribune. 7 de agosto de 1971. p. 21. ISSN 1085-6706. Consultado em 18 de setembro de 2025 – via Newspapers.com
- ↑ Kamin, Blair (6 de outubro de 1994). «Arts Club's Interior Gets a Reprieve Landmarks Panel Delays Decision; Developer Irked». Chicago Tribune. pp. 1, 12. ISSN 1085-6706. Consultado em 18 de setembro de 2025 – via Newspapers.com
- ↑ Sprinkle 2007, p. 94.
- ↑ «Robie House is Given Plaque as Landmark». Chicago Tribune. 2 de abril de 1964. p. 38. ISSN 1085-6706. Consultado em 18 de setembro de 2025 – via Newspapers.com
- ↑ «Robie House». Registro Nacional de Lugares Históricos, Serviço Nacional de Parques. Consultado em 18 de setembro de 2025
- ↑ Serviço Nacional de Parques 1991, p. 9.
- ↑ «Hyde Park–Kenwood Historic District» (PDF). Sociedade de Preservação Histórica de Illinois. 14 de fevereiro de 1979. Consultado em 18 de setembro de 2025. Arquivado do original (PDF) em 6 de novembro de 2016
- ↑ «Robie, Frederick C., House». Serviço Nacional de Parques. Consultado em 18 de setembro de 2025. Arquivado do original em 31 de julho de 2012
- ↑ Winston, Anna (3 de fevereiro de 2015). «Frank Lloyd Wright buildings nominated for UNESCO World Heritage List». Dezeen. Consultado em 27 de junho de 2025
- ↑ «World Attention Fallingwater is Commanding a Greater View». Pittsburgh Post-Gazette. 26 de janeiro de 2008. p. B.6. ProQuest 390486630
- ↑ Axelrod, Josh (7 de julho de 2019). «UNESCO Adds 8 Frank Lloyd Wright Buildings To Its List Of World Heritage Sites». NPR. Consultado em 19 de junho de 2025
- ↑ «Cromie Looks at Authors and Books». Chicago Tribune. 6 de maio de 1969. p. 18. ISSN 1085-6706. Consultado em 20 de setembro de 2025 – via Newspapers.com
- ↑ Gapp, Paul (2 de junho de 1985). «In Review». Chicago Tribune. p. 307. ISSN 1085-6706. Consultado em 20 de setembro de 2025 – via Newspapers.com
- ↑ Gapp, Paul (1 de setembro de 1988). «Wright Legacy Inspires Several New Chapters». Chicago Tribune. p. 10. ISSN 1085-6706. ProQuest 282456362
- ↑ Herko, Carl (22 de janeiro de 1995). «Revisiting the Larkin Building – visually». The Buffalo News. pp. E1–E2. Consultado em 20 de setembro de 2025 – via Newspapers.com
- ↑ Wilson, Terry; Buñuel, Diego (13 de janeiro de 1988). «Postal Service delivers honor to Robie House». Chicago Tribune. p. 124. ISSN 1085-6706. Consultado em 20 de setembro de 2025 – via Newspapers.com
- ↑ Moser, Whet (1 de fevereiro de 2018). «Old BBC Documentary Lavishes Attention on Frank Lloyd Wright's Robie House». Chicago Magazine. Consultado em 20 de setembro de 2025
- ↑ Miller, Stuart (28 de junho de 2004). «HGTV». Broadcasting & Cable. 134 (26). p. 40. ProQuest 225299449
- ↑ «10 Buildings That Changed America». WTTW Chicago. Consultado em 20 de setembro de 2025
- ↑ Alexander, Mary L. (19 de março de 1933). «The Week in Art Circles». The Cincinnati Enquirer. p. 55. Consultado em 20 de setembro de 2025 – via Newspapers.com
- ↑ «Wright House Included in Paris Display». Wisconsin State Journal. 24 de abril de 1938. p. 12. Consultado em 20 de setembro de 2025 – via Newspapers.com
- ↑ Cortissoz, Royal (24 de novembro de 1940). «All Sorts of Art, Chiefly American: Vertumnus the Robie House at Chicago». New York Herald Tribune. p. E8. ISSN 1941-0646. ProQuest 1247284462
- ↑ «Stephens Exhibition Entitled 'Architecture Worth Saving'». Columbia Missourian. 12 de fevereiro de 1961. p. 21. Consultado em 20 de setembro de 2025 – via Newspapers.com
- ↑ Muschamp, Herbert (18 de fevereiro de 1994). «An Architect From the Ground Up». The New York Times. ISSN 0362-4331. Consultado em 20 de setembro de 2025. (pede subscrição (ajuda))
- ↑ O'Brien, George (28 de maio de 1964). «Modern Household Designs Get a New Home in Museum». The New York Times. ISSN 0362-4331. Consultado em 20 de setembro de 2025. (pede subscrição (ajuda))
- ↑ «Frank Lloyd Wright designs at U. of C.». Chicago Tribune. 11 de janeiro de 1979. p. N2. ISSN 1085-6706. ProQuest 171821491
- ↑ Gurewitsch, Matthew (3 de novembro de 2000). «In the Swirl of Art Nouveau». The Wall Street Journal. p. W.9. ISSN 0099-9660. ProQuest 398744858
- ↑ Reif, Rita (28 de agosto de 1983). «New Insights Into Wright's Design». The New York Times. ISSN 0362-4331. Consultado em 20 de setembro de 2025. (pede subscrição (ajuda))
- ↑ Miller, Margo (31 de janeiro de 1992). «Furnishing the Wright way». Boston Globe. p. 51. ProQuest 294648443
- ↑ Kamin, Blair (9 de julho de 1992). «Wright show keeps focus within city limits». Chicago Tribune. p. 9A. ISSN 1085-6706. Consultado em 20 de setembro de 2025 – via Newspapers.com
- ↑ Zimmer, William (20 de outubro de 1996). «Honoring Women as Keepers of the Home». The New York Times. ISSN 0362-4331. Consultado em 20 de setembro de 2025. (pede subscrição (ajuda))
- ↑ Harlow, Tim (9 de outubro de 1996). «Imagination adds dimension to paper dolls and crafts». Star Tribune. p. 3.E. ProQuest 426756800
- ↑ «Frank Lloyd Wright in Pop-Up». Contract. 44 (7). Julho de 2002. p. 22. ProQuest 223763333
- ↑ Waite, Richard (29 de agosto de 2011). «Lego unveils Frank Lloyd Wright's Robie House». The Architects' Journal. Consultado em 20 de setembro de 2025
- ↑ Liptak, Adam (14 de maio de 2006). «Building a Case». The New York Times. ISSN 0362-4331. Consultado em 20 de setembro de 2025. (pede subscrição (ajuda))
Bibliografia
- Colquhoun, Alan (2002). Modern Architecture. Col: Oxford History of Art. Oxford: Oxford University Press. ISBN 978-0-19-102727-7
- Connors, Joseph (1984). The Robie House of Frank Lloyd Wright. Chicago: University of Chicago Press. ISBN 978-0-226-11542-9
- Davis, Susan O'Connor; Vinci, John (2013). Chicago's historic Hyde Park. Chicago & Londres: University of Chicago Press. ISBN 978-0-226-92519-6
- Gill, Brendan (1987). Many Masks: A Life of Frank Lloyd Wright. Nova Iorque: G.P. Putnam's Sons. ISBN 978-0-399-13232-2
- Hoffmann, Donald (1984). Frank Lloyd Wright's Robie House. Nova Iorque: Dover Publications. ISBN 978-0-486-14026-1
- Levine, Neil (1997). The Architecture of Frank Lloyd Wright. Princeton: Princeton University Press. ISBN 978-0-691-03371-6
- Lucas, Suzette (2006). «Conserving a Masterpiece: The Frederick C. Robie House». Frank Lloyd Wright Quarterly. 17 (2)
- McCarter, Robert (1997). Frank Lloyd Wright. Londres: Phaidon Press. ISBN 978-0-7148-3148-0
- «Mr. Robie knew what he wanted» (PDF). Architectural Forum. 109 (10). Outubro de 1958
- National Register of Historic Places 1966 to 1991. Nashville & Washington: Serviço Nacional de Parques. 1991. ISBN 978-0-942063-21-9
- Sanderson, Arlene (2001). A Guide to Frank Lloyd Wright Public Places: Wright Sites. Nova Iorque: Princeton Architectural Press. ISBN 978-1-56898-275-5
- Schroer, Blanche H. (15 de outubro de 1966). Robie House (PDF) (Relatório). Registro Nacional de Lugares Históricos, Serviço Nacional de Parques. 66000316
- Smith, Kathryn (2008). «How the Robie House was Saved». Frank Lloyd Wright Quarterly. 19 (4)
- Sprinkle, John H. (2007). «Of Exceptional Importance": The Origins of the "Fifty-Year Rule" in Historic Preservation». The Public Historian. 29 (2)
- Storrer, William Allin (1993). The Frank Lloyd Wright Companion. Chicago: University of Chicago Press. ISBN 978-0-226-77624-8
- «The Frederick C. Robie House, Frank Lloyd Wright, Architect» (PDF). The Prairie School Review. IV (4). 1967
- Twombly, Robert C. (1991). Frank Lloyd Wright: His Life and His Architecture. Nova Iorque: John Wiley & Sons. ISBN 978-0-471-85797-6
- Weil, Zarine; Wright, Frank Lloyd; Long, Tim; Bachand, Cheryl; Reis, Brian (2010). Frank Lloyd Wright's Robie House. Oak Park & Seattle: Frank Lloyd Wright Preservation Trust & Marquand Books. ISBN 978-0-615-36404-9
Ligações externas
- Página oficial do Fundo Frank Lloyd Wright (em inglês)
.png)
.png)
.png)