Planta baixa
Planta baixa é o nome que se dá ao desenho de uma construção[1] feito, em geral, a partir do corte horizontal à altura de 1,5m a partir da base. É um diagrama dos relacionamentos entre salas, espaços e outros aspectos físicos em um nível de uma estrutura. Nela devem estar detalhadas em escala as medidas das paredes (comprimento e espessura), portas, janelas, o nome de cada ambiente e seu respectivo nível. Dimensões são, em geral, os espaços entre as paredes de uma sala ou cômodo e incluem, ainda, detalhes de componentes como pias, aquecedores de água, etc., além de notas que especificam acabamentos, métodos de construção e símbolos de itens elétricos.
A partir da planta baixa são feitos os lançamentos dos demais projetos complementares[1] de instalações elétricas, hidráulicas, sanitárias, telefônicas, prevenção e combate a incêndio, sistema de proteção a descargas atmosféricas (spda), sonorização, segurança, assim como o cálculo estrutural e de fundações de uma obra.
Apesar de, em teoria, serem elementos diferentes da geometria descritiva, costuma-se confundir os termos "planta" e "planta baixa". Se seguirmos a origem da adjetivação, as línguas que desenvolveram um léxico especificamente relacionado à terminologia técnica em arquitetura, apresentam termos próprios para a representação da "planta do andar térreo", como a mais importante das plantas, pois é a planta de acesso. Isso acontece em francês ("rez-de-chausée"), em inglês ("groundfloor"), em alemão ("grundriss"), mas é especialmente em espanhol que se revela a firmeza, a robustez da denominação "planta baja", que não é confundida com a planta técnica de nenhum outro andar. Assim, etimologicamente, somente deveríamos denominar "planta baixa" à importante planta do acesso à edificação, e não, genericamente, à planta de qualquer andar ou pavimento de uma edificação. Nos demais pavimentos, recomenda-se utilizar apenas a palavra "planta" e indicar o andar, pavimento, nivel ou outra convenção de diferenciação. No caso brasileiro, essa confusão é provavelmente fundamentada na definição do plano horizontal de projeção da planta de um determinado andar de uma edificação, como situado a aproximadamente 1,20 metros do chão - por isso, seria uma "planta baixa", pela curiosa confusão gerada pela definição da projeção genérica.
Blocos de construção

Um plano de piso não é uma vista superior ou "vista aérea". É um desenho medido a escala do layout de um piso em um prédio. A vista superior ou vista aérea não mostra um plano plano projetado ortogonalmente na altura típica de quatro pés acima do nível do chão. Um plano de chão poderia mostrar:[2]
- Paredes interiores e corredores;
- Banheiros;
- Janelas e portas;
- Aparelhos como fogões, geladeiras, aquecedor de água etc;
- Características do interior, como lareiras, saunas e banheira de hidromassagem;
- O uso de todos os quartos.
Exemplos
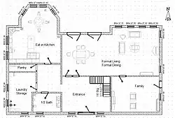
Planta baixa típica de uma casa simples estadunidense.
Exemplo de planta baixa de uma casa.
Exemplo de planta baixa de um caravançarai.
Planta baixa de um escritório.
Referências
- 1 2 financiamentoeconstrucao.com.br. «O que é uma planta baixa de uma casa e para que ela serve?». Consultado em 19 de dezembro de 2017
- ↑ Site Plans, Elevations and Floor Plans Arquivado em 2010-06-07 no Wayback Machine A Community Guide San Jose. Accessed 11 February 2009.