Villa Pisani (Montagnana)
![]() Fachada da Villa Pisani, em Montagnana | |
| Critérios | C(i) C(ii) |
| País | Itália |
| Coordenadas | 45.230556 N, 11.469444 E |
| Histórico de inscrição | |
| Inscrição | 1994 |
★ Nome usado na lista do Património Mundial | |
A Villa Pisani é uma casa patrícia situada fora dos muros de Montagnana, no Véneto. Foi encomendada pelo Cardeal Francesco Pisani e construída segundo um projecto estabelecido, em 1552, por Andrea Palladio[1]. A villa comtinua a ser uma propriedade privada.
Está classificada pela UNESCO, desde 1996, como Património Mundial, integrada no sítio Cidade de Vicenza e Villas de Palladio no Véneto.
História
Os Pisani eram poderosos e influentes patrícios venezianos. Francesco Pisani era um mecenas e amigo de artistas e escritores, como os pintores Paolo Veronese e Giambattista Maganza, o escultor Alessandro Vittoria, ocupado pouco antes no palladiano Palazzo Thiene, e o próprio Palladio. Os dois últimos estiveram envolvidos na construção e decoração da sua casa em Montagnana. O estaleiro estava seguramente activo em Setembro de 1553 e as obras ficaram concluídas em 1555, incluindo a decoração plástica.
Arquitectura
_(23547587).jpg)

.jpg)
Ao contrário das mais típicas villas palladianas - e das suas imitações na Grã-Bretanha e na Alemanha - a Villa Pisani em Montagnana combina uma frente urbana (ilustração ao lado) frente à praça da comuna, e, no outro lado, uma frente rural que se estende para os jardins, com um conjunto agrícola mais além. De facto, o edifício tanto é um palácio de cidade como uma residência suburbana, sendo ainda um exemplo interessante da tipologia construtiva de Palladio.

_-_BEIC_6330514.jpg)
Privada das partes destinadas às funções agrícolas, de beleza abstracta no volume quase cúbico, a Villa Pisani reflecte bem o gosto sofisticado do proprietário. Pela primeira vez, aparece numa villa uma ordem dupla (jónico sobre dórico) de semi-colunas e uma dupla loggia coroada por tímpano, solução já encontrada no Palazzo Chiericati. O conjunto é cintado por um ininterrupto e elegante friso dórico, completo com bucrânios e páteras nas métopas entre os tríglifos, numa textura de estuque branco rusticado com grafitos, que divide o piso térreo do andar superior. Na fachada voltada ao jardim, a bidimensionalidade da parede movimenta-se na reentrância plástica do pórtico e da loggia superior.
O material utilizado é o tijolo, mesmo para a construção das colunas.
Embora não existam desenhos autografados por Palladio relativos ao edifício, é possível que a tábua com a descrição da villa na obra I quattro libri dell'architettura (1570) seja fruto duma ampliação posterior para a invenção realizada. A gravura mostra uma villa ampliada e idealizada, com um bloco central flanqueado por estruturas de porta arqueada que acabam em pavilhões parecidos com altas torres de três pisos[2].
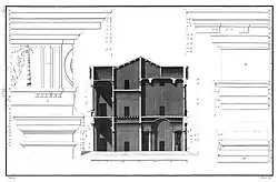
Caso raro na produção palladiana, a villa tem dois andares: o superior com dois apartamentos senhoriais geminados, separado das salas mais públicas do piso principal; o inferior para a vida de todos os dias, quando se trata de assuntos e se recebem inquilinos, e não só no Verão, como provam as numerosas lareiras. Os dois níveis apresentam a mesma articulação dos espaços interiores. Pelo contrário, os tectos são diferentes, com os do piso térreo a apresentarem abóbadas a partir do extraordinário ambiente com semicolunas, uma via do meio entre átrio e salão, claramente o ambiente mais importante da casa, com as esculturas das Quatro Estações, de Alessandro Vittoria, pouco antes ocupado na execução do Palazzo Thiene. As ligações verticais são asseguradas por escadas em caracol ovaladas, instaladas simetricamente nos lados da loggia virada ao jardim.
No exterior, poucas diferenças existem entre os dois andares: não é obviamente visível um andar nobre (piano nobile). Na fachada do jardim, o acesso ao parque é feito apenas pelo recolhido pórtico central; uma balaustrada sobre uma profunda vala não deixa passar os intrusos.
Notas
- ↑ A mais destacada Villa Pisani, entre numerosas villas que pertenceram a esta família veneziana, é a barroca Villa Pisani em Stra. Outra villa cujoo nome convida à confusão é a Villa Pisani em Bagnolo di Lonigo.
- ↑ I Quattro Libri dell'Architettura, Veneza, 1570 — facsímile do livro em octavo.com (em italiano)[ligação inativa].


