Planta baixa
Planta baixa é o nome que se dá ao desenho de uma construção[1] feito, em geral, a partir do corte horizontal à altura de 1,5m a partir da base. É um diagrama dos relacionamentos entre salas, espaços e outros aspectos físicos em um nível de uma estrutura. Nela devem estar detalhadas em escala as medidas das paredes (comprimento e espessura), portas, janelas, o nome de cada ambiente e seu respectivo nível. Dimensões são, em geral, os espaços entre as paredes de uma sala ou cômodo e incluem, ainda, detalhes de componentes como pias, aquecedores de água, etc., além de notas que especificam acabamentos, métodos de construção e símbolos de itens elétricos.
A partir da planta baixa são feitos os lançamentos dos demais projetos complementares[1] de instalações elétricas, hidráulicas, sanitárias, telefônicas, prevenção e combate a incêndio, sistema de proteção a descargas atmosféricas (spda), sonorização, segurança, assim como o cálculo estrutural e de fundações de uma obra.
Apesar de, em teoria, serem elementos diferentes da geometria descritiva, costuma-se confundir os termos "planta" e "planta baixa". Se seguirmos a origem da adjetivação, as línguas que desenvolveram um léxico especificamente relacionado à terminologia técnica em arquitetura, apresentam termos próprios para a representação da "planta do andar térreo", como a mais importante das plantas, pois é a planta de acesso. Isso acontece em francês ("rez-de-chausée"), em inglês ("groundfloor"), em alemão ("grundriss"), mas é especialmente em espanhol que se revela a firmeza, a robustez da denominação "planta baja", que não é confundida com a planta técnica de nenhum outro andar. Assim, etimologicamente, somente deveríamos denominar "planta baixa" à importante planta do acesso à edificação, e não, genericamente, à planta de qualquer andar ou pavimento de uma edificação. Nos demais pavimentos, recomenda-se utilizar apenas a palavra "planta" e indicar o andar, pavimento, nivel ou outra convenção de diferenciação. No caso brasileiro, essa confusão é provavelmente fundamentada na definição do plano horizontal de projeção da planta de um determinado andar de uma edificação, como situado a aproximadamente 1,20 metros do chão - por isso, seria uma "planta baixa", pela curiosa confusão gerada pela definição da projeção genérica.
Blocos de construção

Um plano de piso não é uma vista superior ou "vista aérea". É um desenho medido a escala do layout de um piso em um prédio. A vista superior ou vista aérea não mostra um plano plano projetado ortogonalmente na altura típica de quatro pés acima do nível do chão. Um plano de chão poderia mostrar:[2]
- Paredes interiores e corredores;
- Banheiros;
- Janelas e portas;
- Aparelhos como fogões, geladeiras, aquecedor de água etc;
- Características do interior, como lareiras, saunas e banheira de hidromassagem;
- O uso de todos os quartos.
Exemplos
-
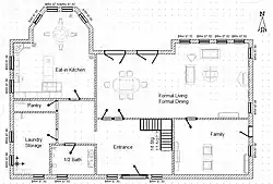
Planta baixa típica de uma casa simples estadunidense. -
Exemplo de planta baixa de uma casa. -
Exemplo de planta baixa de um caravançarai. -
Planta baixa de um escritório.
Referências
- ↑ a b financiamentoeconstrucao.com.br. «O que é uma planta baixa de uma casa e para que ela serve?». Consultado em 19 de dezembro de 2017
- ↑ Site Plans, Elevations and Floor Plans Arquivado em 2010-06-07 no Wayback Machine A Community Guide San Jose. Accessed 11 February 2009.