Casa de Augusto
Casa de Augusto
Domus Augusti | |
|---|---|
![]() | |
![]() Localização da Casa de Augusto na Roma Antiga | |
| Localização atual | |
| Coordenadas | 🌍 |
| País | Itália |
| Região | Roma |
| Dados históricos | |
| Período/era | Augustano |
| Civilização | Cultura romana |

Casa de Augusto (em latim: Domus Augusti) ou Casa Augusteia (em latim: Domus Augustea) é o nome atribuído a duas residências de Otaviano situadas no monte Palatino, em Roma, na Itália. A primeira delas foi a residência onde nasceu e viveu por algum tempo antes de partir com sua família para Velitras. A segunda foi sua residência oficial quando tornou-se imperador como Augusto (r. 27 a.C.–14 d.C.). Ambas não devem ser confundidas com a Casa Augustana (Domus Augustana) ou Casa Augustiana (Domus Augustiana), que faz parte do vasto complexo palaciano construído pelo imperador Domiciano (r. 81–96) no Palatino em 92.[1]
A segunda residência de Augusto foi instalada onde se situavam as residências de Quinto Hortênsio Hórtalo e Quinto Lutácio Cátulo, ambas compradas. Ela foi construída antes de 13 de janeiro de 27 a.C., data que o senado autoriza o príncipe a colocar a coroa de carvalho acima da porta de sua residência. De acordo com Suetônio, dentro do complexo havia o Templo de Apolo Palatino que foi construído sobre o local onde o edifício foi atingido por um raio. Nele havia, segundo os autores clássicos, uma elevada câmara de torre, para a qual o imperador se retirava, uma edícula e um Altar de Vesta (Ara Vestae). O edifício foi destruído por um incêndio em 3 d.C., e foi reconstruído mediante contribuições.[1]
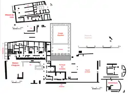
A Casa de Augusto é beirada por uma pequena passagem, acessada pelo criptopórtico da Casa de Tibério, que prossegue para um pátio amplamente pavimentado com mosaicos. À direita há um triclínio e próximo há uma adega de vinho. Oposto à entrada há três salas abobadadas defrontando o muro norte e originalmente iluminadas por janelas lunetas sob o telhado do pátio. Nelas há afrescos similares àqueles de Pompeia. A outra seção da casa, talvez a frente, foi acessada por um pórtico descrito por uma estreita escada de madeira. Ela consistiu num pátio cercado por um pórtico com pilares retangulares e salas nos dois lados; no lado sul há restos escassos dum peristilo. Seu centro foi preenchido por uma grande sala e o pórtico se divide em pequenas salas. Seu ângulo de molde foi cortado por um estreito criptopórtico. Sabe-se que há um andar inferior, sob o qual nada se sabe atualmente.[1]
Referências
- ↑ a b c «Domus Augusti» (em inglês). Consultado em 14 de agosto de 2014

